京都府京都市左京区下鴨蓼倉町の賃貸アパート
POINT!人気の葵小学校区。 人気のハウスメーカー施工のファミリー物件が登場。
|
京都府京都市左京区下鴨蓼倉町
京阪電気鉄道鴨東線/出町柳 徒歩16分
|
||||
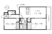
| 賃料 | 13.5万円 | 敷金/礼金 | 5.0万円 / 20.0万円 | |
|---|---|---|---|---|
| 共益費 | 3,000円 | 保証金/敷引 | -/- | |
| 階層 / 方位 | 1階/地上2階建 / 南 | 間取 / 面積 | 2LDK / 50.1m² | |
| 種別 / 構造 | アパート | 築年数 | 2020年03月 | |
| 特徴 | 南向き バス・トイレ別 エアコン オートロック 駐車場あり 即入居可 | |||
| 本物件について |
こちらの物件は京阪電気鉄道鴨東線の出町柳駅より徒歩で16分の場所にあるアパートです。南向き物件のため、日当たりがとても良い物件となっております。即入居可、2人入居可のため、とても人気の物件となっております。キッチンは、システムキッチン、カウンターキッチンになります。部屋の設備としては、バス・トイレ別、浴室乾燥機、独立洗面台、温水洗浄便座があります。エアコンが既に設置されているため、初期費用を抑えることが出来ます。収納としては、床下収納があるため、キッチンアイテムを収納することが可能になっています。そしてインターネット対応しています。セキュリティーとしては、オートロック、TVドアホン、宅配ボックスがあります。部屋の設備としては、フローリング、室内洗濯機置場、バルコニー、駐車場あり、駐輪場ありがあります。 |
|||
ただいま2人が検討中!
ラ・ペ下鴨葵[102号室]
POINT!人気の葵小学校区。 人気のハウスメーカー施工のファミリー物件が登場。
|
京都府京都市左京区下鴨蓼倉町
京阪電気鉄道鴨東線/出町柳 徒歩16分
|
||||
| 賃料 | 13.5万円 | 敷金/礼金 | 5.0万円 / 20.0万円 | |
|---|---|---|---|---|
| 共益費 | 3,000円 | 保証金/敷引 | -/- | |
| 階層 / 方位 | 1階/地上2階建 / 南 | 間取 / 面積 | 2LDK / 50.1m² | |
| 種別 / 構造 | アパート | 築年数 | 2020年03月 | |
| 特徴 | 南向き バス・トイレ別 エアコン オートロック 駐車場あり 即入居可 | |||
エリア・賃料・間取り・駅徒歩が近いおすすめ物件一覧
京都府京都市北区 | 京阪鴨東線・烏丸線 | 135,000円前後 | 駅徒歩21分以内 | 2K〜3K
のおすすめ物件だぶ!
|
京都府京都市左京区聖護院蓮華蔵町
京阪鴨東線/神宮丸太町駅 歩4分
|
||||
| 賃料 | 13.5万円 | 敷金/礼金 | 無料 / 1ヶ月 | |
|---|---|---|---|---|
| 共益費 | 5,000円 | 保証金/敷引 | -/- | |
| 階層 / 方位 | 1階/地上4階建 / 南 | 間取 / 面積 | 2LDK / 44.43m² | |
| 種別 / 構造 | マンション | 築年数 | 2017年03月 | |
| 特徴 | 敷金なし 駅徒歩5分 南向き バス・トイレ別 エアコン オートロック 即入居可 | |||
|
京都府京都市左京区聖護院山王町
京阪鴨東線/神宮丸太町駅 歩7分
|
||||
| 賃料 | 13.6万円 | 敷金/礼金 | 無料 / 無料 | |
|---|---|---|---|---|
| 共益費 | 1.178万円 | 保証金/敷引 | -/- | |
| 階層 / 方位 | 1階/地上5階建 / 東 | 間取 / 面積 | 2LDK / 55.0m² | |
| 種別 / 構造 | マンション | 築年数 | 2018年11月 | |
| 特徴 | 礼金なし 敷金なし バス・トイレ別 エアコン オートロック 即入居可 | |||
ただいま10人以上が検討中!
|
京都府京都市左京区下鴨宮崎町
京阪電気鉄道鴨東線/出町柳 徒歩11分
|
||||
| 賃料 | 12.7万円 | 敷金/礼金 | 5.5万円 / 10.0万円 | |
|---|---|---|---|---|
| 共益費 | 9,000円 | 保証金/敷引 | -/- | |
| 階層 / 方位 | 1階/地上2階建 / 東 | 間取 / 面積 | 2SLDK ※Sは納戸となります。 / 64.1m² | |
| 種別 / 構造 | マンション | 築年数 | 2013年03月 | |
| 特徴 | 角部屋 バス・トイレ別 エアコン オートロック | |||
ただいま1人が検討中!
|
京都府京都市左京区聖護院山王町
京阪鴨東線/神宮丸太町駅 歩8分
|
||||
| 賃料 | 13.6万円 | 敷金/礼金 | 無料 / 無料 | |
|---|---|---|---|---|
| 共益費 | 1.178万円 | 保証金/敷引 | -/- | |
| 階層 / 方位 | 1階/地上5階建 / 東 | 間取 / 面積 | 2LDK / 55.0m² | |
| 種別 / 構造 | マンション | 築年数 | 2018年10月 | |
| 特徴 | 礼金なし 敷金なし バス・トイレ別 エアコン オートロック 駐車場あり 即入居可 | |||
ただいま3人が検討中!
|
京都府京都市左京区新丸太町
地下鉄東西線/三条京阪駅 歩5分
|
||||
| 賃料 | 14.0万円 | 敷金/礼金 | 無料 / 1ヶ月 | |
|---|---|---|---|---|
| 共益費 | 5,000円 | 保証金/敷引 | -/- | |
| 階層 / 方位 | 1階/地上3階建 / 東 | 間取 / 面積 | 2LDK / 51.72m² | |
| 種別 / 構造 | マンション | 築年数 | 2015年09月 | |
| 特徴 | 敷金なし 駅徒歩5分 バス・トイレ別 エアコン オートロック 即入居可 ペット相談 | |||
|
京都府京都市左京区北白川西平井町
京阪電気鉄道鴨東線/出町柳 徒歩20分
|
||||
| 賃料 | 14.0万円 | 敷金/礼金 | 5.0万円 / 2ヶ月 | |
|---|---|---|---|---|
| 共益費 | 3,000円 | 保証金/敷引 | -/- | |
| 階層 / 方位 | 2階/地上2階建 / 西 | 間取 / 面積 | 2LDK / 70.62m² | |
| 種別 / 構造 | アパート | 築年数 | 2023年03月 | |
| 特徴 | 角部屋 バス・トイレ別 エアコン 駐車場あり 即入居可 | |||
|
京都府京都市左京区田中西大久保町
京阪電気鉄道鴨東線/出町柳 徒歩15分
|
||||
| 賃料 | 13.5万円 | 敷金/礼金 | 1ヶ月 / 無料 | |
|---|---|---|---|---|
| 共益費 | 5,000円 | 保証金/敷引 | -/- | |
| 階層 / 方位 | 3階/地上3階建 / 南 | 間取 / 面積 | 2LDK / 57.66m² | |
| 種別 / 構造 | アパート | 築年数 | 2024年03月 | |
| 特徴 | 礼金なし 駅徒歩5分 角部屋 南向き バス・トイレ別 オートロック 即入居可 ペット相談 | |||
ただいま1人が検討中!
|
京都府京都市左京区北白川別当町
京阪電気鉄道鴨東線/出町柳 徒歩23分
|
||||
| 賃料 | 13.0万円 | 敷金/礼金 | 1ヶ月 / 2ヶ月 | |
|---|---|---|---|---|
| 共益費 | - | 保証金/敷引 | -/- | |
| 階層 / 方位 | -/地上2階建 / 東 | 間取 / 面積 | 2LDK / 57.0m² | |
| 種別 / 構造 | テラスハウス | 築年数 | 2019年12月 | |
| 特徴 | バス・トイレ別 駐車場あり オール電化 | |||
ただいま1人が検討中!
|
京都府京都市左京区田中西大久保町
京阪電気鉄道鴨東線/出町柳 徒歩15分
|
||||
| 賃料 | 13.5万円 | 敷金/礼金 | 1ヶ月 / 無料 | |
|---|---|---|---|---|
| 共益費 | 5,000円 | 保証金/敷引 | -/- | |
| 階層 / 方位 | 2階/地上3階建 / 南 | 間取 / 面積 | 2LDK / 57.66m² | |
| 種別 / 構造 | アパート | 築年数 | 2024年03月 | |
| 特徴 | 礼金なし 駅徒歩5分 角部屋 南向き バス・トイレ別 オートロック 即入居可 ペット相談 | |||
ただいま1人が検討中!
|
京都府京都市左京区聖護院蓮華蔵町
京阪電気鉄道鴨東線/神宮丸太町 徒歩6分
|
||||
| 賃料 | 13.5万円 | 敷金/礼金 | 無料 / 1ヶ月 | |
|---|---|---|---|---|
| 共益費 | 5,000円 | 保証金/敷引 | -/- | |
| 階層 / 方位 | 1階/地上4階建 / 南 | 間取 / 面積 | 2LDK / 44.43m² | |
| 種別 / 構造 | マンション | 築年数 | 2017年03月 | |
| 特徴 | 敷金なし 南向き バス・トイレ別 エアコン オートロック 即入居可 | |||
|
京都府京都市左京区田中門前町
京阪電気鉄道鴨東線/出町柳 徒歩12分
|
||||
| 賃料 | 13.56万円 | 敷金/礼金 | 1ヶ月 / 25.0万円 | |
|---|---|---|---|---|
| 共益費 | 1.44万円 | 保証金/敷引 | -/- | |
| 階層 / 方位 | 1階/地上5階建 / 西 | 間取 / 面積 | 2LDK / 47.3m² | |
| 種別 / 構造 | マンション | 築年数 | 2012年02月 | |
| 特徴 | バス・トイレ別 エアコン オートロック 即入居可 | |||
ただいま1人が検討中!
|
京都府京都市左京区下鴨宮崎町
京阪電気鉄道鴨東線/出町柳 徒歩12分
|
||||
| 賃料 | 12.7万円 | 敷金/礼金 | 5.5万円 / 10.0万円 | |
|---|---|---|---|---|
| 共益費 | 9,000円 | 保証金/敷引 | -/- | |
| 階層 / 方位 | 1階/地上2階建 / 東 | 間取 / 面積 | 2LDK / 64.1m² | |
| 種別 / 構造 | マンション | 築年数 | 2013年03月 | |
| 特徴 | 角部屋 バス・トイレ別 エアコン オートロック 保証人不要・代行 即入居可 | |||



