お探しの物件はこちらですか?
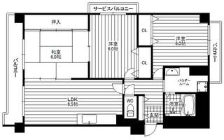
POINT!元特優賃の収納豊富な3LDK、南西角部屋、南向きバルコニーで日当り良好。最上階、南向きの気持ちの良いお部屋。
|
大阪府大阪市浪速区稲荷1丁目
関西本線/JR難波 徒歩5分
|
||||
| 賃料 | 14.0万円 | 敷金/礼金 | 無料 / 1ヶ月 | |
|---|---|---|---|---|
| 共益費 | 1.0万円 | 保証金/敷引 | -/- | |
| 階層 / 方位 | 13階/地上13階建 / 南 | 間取 / 面積 | 3LDK / 62.95m² | |
| 種別 / 構造 | マンション | 築年数 | 1997年08月 | |
| 特徴 | 敷金なし 駅徒歩5分 角部屋 南向き バス・トイレ別 オートロック | |||
| 本物件について |
こちらの物件は関西本線のJR難波駅より徒歩で5分の場所にあるマンションです。角部屋のため、生活音が響きにくく、通気性・風通しが良いです。風呂場には、浴室乾燥機があるため、雨の日でも衣服を室内で乾かすことが出来ます。そしてインターネット対応しています。オートロック付きの物件のため、空き巣や訪問営業対策にとても効果的です。部屋の設備としては、フローリング、室内洗濯機置場、バルコニー、エレベーターがあります。 |
|||
ただいま5人が検討中!
エリア・賃料・間取り・駅徒歩が近いおすすめ物件一覧
大阪府大阪市天王寺区 | 関西線・四つ橋線・千日前線 | 140,000円前後 | 駅徒歩10分以内 | 3K〜4K
のおすすめ物件だぶ!
|
大阪府大阪市浪速区敷津西2丁目
大阪市御堂筋線/大国町 徒歩5分
|
||||
| 賃料 | 13.8万円 | 敷金/礼金 | 無料 / 1ヶ月 | |
|---|---|---|---|---|
| 共益費 | 1.5万円 | 保証金/敷引 | -/- | |
| 階層 / 方位 | 7階/地上10階建 / 南 | 間取 / 面積 | 3DK / 52.34m² | |
| 種別 / 構造 | マンション | 築年数 | 1996年05月 | |
| 特徴 | 敷金なし 駅徒歩5分 角部屋 南向き バス・トイレ別 エアコン オートロック 駐車場あり 保証人不要・代行 即入居可 ペット相談 | |||
ただいま3人が検討中!
|
大阪府大阪市浪速区桜川4
地下鉄千日前線/桜川駅 歩3分
|
||||
| 賃料 | 13.9万円 | 敷金/礼金 | 無料 / 1.5ヶ月 | |
|---|---|---|---|---|
| 共益費 | 1.0万円 | 保証金/敷引 | -/- | |
| 階層 / 方位 | 9階/地上11階建 / - | 間取 / 面積 | 3DK / 55.08m² | |
| 種別 / 構造 | マンション | 築年数 | 1987年09月 | |
| 特徴 | 敷金なし 駅徒歩5分 バス・トイレ別 エアコン オートロック | |||
ただいま5人が検討中!
|
大阪府大阪市生野区新今里1丁目
近鉄難波・奈良線/今里 徒歩7分
|
||||
| 賃料 | 13.8万円 | 敷金/礼金 | 無料 / 無料 | |
|---|---|---|---|---|
| 共益費 | - | 保証金/敷引 | -/- | |
| 階層 / 方位 | -/地上3階建 / - | 間取 / 面積 | 3LDK / 75.48m² | |
| 種別 / 構造 | 一戸建 | 築年数 | 1987年01月 | |
| 特徴 | 礼金なし 敷金なし バス・トイレ別 エアコン 保証人不要・代行 即入居可 | |||
ただいま8人が検討中!
|
大阪府大阪市福島区大開1丁目
大阪市千日前線/野田阪神 徒歩6分
|
||||
| 賃料 | 13.0万円 | 敷金/礼金 | 無料 / 1ヶ月 | |
|---|---|---|---|---|
| 共益費 | - | 保証金/敷引 | -/- | |
| 階層 / 方位 | -/地上2階建 / 南 | 間取 / 面積 | 4K / 66.74m² | |
| 種別 / 構造 | 一戸建 | 築年数 | 1982年05月 | |
| 特徴 | 敷金なし 南向き バス・トイレ別 保証人不要・代行 即入居可 ペット相談 | |||
ただいま9人が検討中!
|
大阪府大阪市中央区谷町9丁目
大阪市千日前線/谷町九丁目 徒歩1分
|
||||
| 賃料 | 15.0万円 | 敷金/礼金 | 1ヶ月 / 2ヶ月 | |
|---|---|---|---|---|
| 共益費 | 1.0万円 | 保証金/敷引 | -/- | |
| 階層 / 方位 | 10階/地上11階建 / 南東 | 間取 / 面積 | 3LDK / 62.45m² | |
| 種別 / 構造 | マンション | 築年数 | 1997年03月 | |
| 特徴 | 駅徒歩5分 角部屋 南向き バス・トイレ別 オートロック 保証人不要・代行 即入居可 | |||
ただいま3人が検討中!
|
大阪府大阪市生野区巽西3丁目
大阪市千日前線/南巽 徒歩9分
|
||||
| 賃料 | 12.5万円 | 敷金/礼金 | 無料 / 15.0万円 | |
|---|---|---|---|---|
| 共益費 | 3,000円 | 保証金/敷引 | -/- | |
| 階層 / 方位 | 1階/地上4階建 / 東 | 間取 / 面積 | 3SLDK ※Sは納戸となります。 / 80.9m² | |
| 種別 / 構造 | マンション | 築年数 | 2014年04月 | |
| 特徴 | 敷金なし バス・トイレ別 オートロック 駐車場あり 保証人不要・代行 ペット相談 | |||
ただいま5人が検討中!
|
大阪府大阪市東成区東中本2丁目
大阪市中央線/緑橋 徒歩3分
|
||||
| 賃料 | 12.9万円 | 敷金/礼金 | 10.0万円 / 40.0万円 | |
|---|---|---|---|---|
| 共益費 | 1.0万円 | 保証金/敷引 | -/- | |
| 階層 / 方位 | 8階/地上10階建 / 南 | 間取 / 面積 | 3LDK / 67.2m² | |
| 種別 / 構造 | マンション | 築年数 | 1990年09月 | |
| 特徴 | 駅徒歩5分 南向き バス・トイレ別 オートロック 駐車場あり 即入居可 | |||
ただいま2人が検討中!
|
大阪府大阪市西区江戸堀3丁目
大阪市千日前線/阿波座 徒歩5分
|
||||
| 賃料 | 13.5万円 | 敷金/礼金 | 無料 / 35.0万円 | |
|---|---|---|---|---|
| 共益費 | 1.0万円 | 保証金/敷引 | -/- | |
| 階層 / 方位 | 4階/地上14階建 / 南 | 間取 / 面積 | 3LDK / 66.14m² | |
| 種別 / 構造 | マンション | 築年数 | 1999年02月 | |
| 特徴 | 敷金なし 駅徒歩5分 角部屋 南向き バス・トイレ別 オートロック 駐車場あり 保証人不要・代行 | |||
ただいま4人が検討中!
|
大阪府大阪市中央区谷町6丁目
大阪市長堀鶴見緑地/松屋町 徒歩5分
|
||||
| 賃料 | 13.8万円 | 敷金/礼金 | 無料 / 1ヶ月 | |
|---|---|---|---|---|
| 共益費 | 8,000円 | 保証金/敷引 | -/- | |
| 階層 / 方位 | 5階/地上6階建 / 南 | 間取 / 面積 | 3LDK / 66.5m² | |
| 種別 / 構造 | マンション | 築年数 | 1993年01月 | |
| 特徴 | 敷金なし 駅徒歩5分 角部屋 南向き バス・トイレ別 オートロック 駐車場あり 即入居可 ペット相談 | |||
ただいま8人が検討中!
|
大阪府大阪市西区南堀江4丁目
大阪市千日前線/西長堀 徒歩5分
|
||||
| 賃料 | 12.9万円 | 敷金/礼金 | 無料 / 13.9万円 | |
|---|---|---|---|---|
| 共益費 | 1.0万円 | 保証金/敷引 | -/- | |
| 階層 / 方位 | 3階/地上11階建 / 南 | 間取 / 面積 | 3LDK / 54.32m² | |
| 種別 / 構造 | マンション | 築年数 | 1986年03月 | |
| 特徴 | 敷金なし 駅徒歩5分 南向き バス・トイレ別 オートロック 駐車場あり | |||
ただいま6人が検討中!
|
大阪府大阪市天王寺区堂ケ芝2丁目
大阪環状線/桃谷 徒歩3分
|
||||
| 賃料 | 14.6万円 | 敷金/礼金 | 無料 / 2ヶ月 | |
|---|---|---|---|---|
| 共益費 | 1.0万円 | 保証金/敷引 | -/- | |
| 階層 / 方位 | 2階/地上7階建 / 東 | 間取 / 面積 | 3LDK / 60.82m² | |
| 種別 / 構造 | マンション | 築年数 | 1983年07月 | |
| 特徴 | 敷金なし 駅徒歩5分 角部屋 バス・トイレ別 オートロック 駐車場あり 即入居可 | |||
ただいま5人が検討中!
|
大阪府大阪市西区江戸堀3丁目
大阪市千日前線/阿波座 徒歩7分
|
||||
| 賃料 | 14.0万円 | 敷金/礼金 | 無料 / 2.5ヶ月 | |
|---|---|---|---|---|
| 共益費 | 1.0万円 | 保証金/敷引 | -/- | |
| 階層 / 方位 | 13階/地上14階建 / 南 | 間取 / 面積 | 3LDK / 66.67m² | |
| 種別 / 構造 | マンション | 築年数 | 1999年02月 | |
| 特徴 | 敷金なし 南向き バス・トイレ別 オートロック 駐車場あり 即入居可 | |||
ただいま5人が検討中!



