ボスコヴィラ
POINT!★初期費用分割払い可能★ネットに掲載されている物件は全てご紹介可能です!!
|
大阪府松原市一津屋4丁目
近鉄南大阪線/恵我ノ荘 徒歩10分
|
||||
| 賃料 | 5.5万円 | 敷金/礼金 | 無料 / 無料 | |
|---|---|---|---|---|
| 共益費 | 5,000円 | 保証金/敷引 | -/- | |
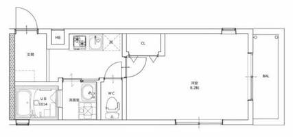
| 階層 / 方位 | 3階/地上3階建 / - | 間取 / 面積 | 1K / 27.35m² | |
| 種別 / 構造 | アパート | 築年数 | 新築(2024年12月) | |
| 特徴 | 礼金なし 敷金なし 新築 角部屋 バス・トイレ別 エアコン オートロック 駐車場あり 即入居可 | |||
| 本物件について |
こちらの物件は近鉄南大阪線の恵我ノ荘駅より徒歩で10分の場所にあるアパートです。角部屋のため、生活音が響きにくく、通気性・風通しが良いです。キッチンには、システムキッチンがあります。部屋の設備としては、浴室乾燥機、温水洗浄便座があります。エアコンが既に設置されているため、初期費用を抑えることが出来ます。そしてインターネット対応しています。オートロック付きの物件のため、空き巣や訪問営業対策にとても効果的です。部屋の設備としては、フローリング、室内洗濯機置場、バルコニーがあります。 |
|||
ただいま1人が検討中!
ボスコヴィラ
POINT!洗面所は浴室から独立しており、お湯の湿気で濡れません。バルコニー付きのアパートです。一人で快適なお住まいなら、間取りに余裕のある1Kの物件はいかがでしょうか。一口コンロが付いています。新築にこだわりをもつ方には、こちらの新築物件はいかがでしょうか。コートなども扱いやすいクロゼットが設置されています。入居開始日が待ち遠しい、未完成の物件です。凸凹がなく、天板がフラットなのでサッと拭くだけで綺麗になるIHを使用できます。
|
大阪府松原市一津屋4丁目
近鉄南大阪線/恵我ノ荘 徒歩10分
|
||||
| 賃料 | 5.3万円 | 敷金/礼金 | 無料 / 無料 | |
|---|---|---|---|---|
| 共益費 | 5,000円 | 保証金/敷引 | -/- | |
| 階層 / 方位 | 1階/地上3階建 / 南 | 間取 / 面積 | 1K / 23.4m² | |
| 種別 / 構造 | アパート | 築年数 | 築1年以内(2024年12月) | |
| 特徴 | 礼金なし 敷金なし 南向き バス・トイレ別 エアコン オートロック 駐車場あり 保証人不要・代行 即入居可 | |||
ボスコヴィラ
POINT!洗面所は浴室から独立しており、お湯の湿気で濡れません。バルコニー付きのアパートです。一人で快適なお住まいなら、間取りに余裕のある1Kの物件はいかがでしょうか。一口コンロが付いています。新築にこだわりをもつ方には、こちらの新築物件はいかがでしょうか。コートなども扱いやすいクロゼットが設置されています。入居開始日が待ち遠しい、未完成の物件です。凸凹がなく、天板がフラットなのでサッと拭くだけで綺麗になるIHを使用できます。
|
大阪府松原市一津屋4丁目
近鉄南大阪線/恵我ノ荘 徒歩10分
|
||||
| 賃料 | 5.5万円 | 敷金/礼金 | 無料 / 無料 | |
|---|---|---|---|---|
| 共益費 | 5,000円 | 保証金/敷引 | -/- | |
| 階層 / 方位 | 3階/地上3階建 / 東 | 間取 / 面積 | 1K / 27.35m² | |
| 種別 / 構造 | アパート | 築年数 | 新築(2024年12月) | |
| 特徴 | 礼金なし 敷金なし 新築 バス・トイレ別 エアコン オートロック 駐車場あり 保証人不要・代行 即入居可 | |||
大阪府松原市一津屋4丁目の賃貸アパート
POINT!インターネットに掲載されている物件は、全てご紹介可能です!!☆彡
|
大阪府松原市一津屋4丁目
近鉄南大阪線/恵我ノ荘 徒歩10分
|
||||
| 賃料 | 5.3万円 | 敷金/礼金 | 無料 / 無料 | |
|---|---|---|---|---|
| 共益費 | 5,000円 | 保証金/敷引 | -/- | |
| 階層 / 方位 | 1階/地上3階建 / - | 間取 / 面積 | 1K / 23.4m² | |
| 種別 / 構造 | アパート | 築年数 | 築1年以内(2024年12月) | |
| 特徴 | 礼金なし 敷金なし バス・トイレ別 エアコン オートロック 即入居可 ペット相談 | |||
大阪府松原市一津屋4丁目の賃貸アパート
POINT!インターネットに掲載されている物件は、全てご紹介可能です!!☆彡
|
大阪府松原市一津屋4丁目
近鉄南大阪線/恵我ノ荘 徒歩10分
|
||||
| 賃料 | 5.5万円 | 敷金/礼金 | 無料 / 無料 | |
|---|---|---|---|---|
| 共益費 | 5,000円 | 保証金/敷引 | -/- | |
| 階層 / 方位 | 3階/地上3階建 / - | 間取 / 面積 | 1K / 27.35m² | |
| 種別 / 構造 | アパート | 築年数 | 築1年以内(2024年12月) | |
| 特徴 | 礼金なし 敷金なし 角部屋 バス・トイレ別 エアコン オートロック 即入居可 | |||
ボスコヴィラ
POINT!★初期費用分割払い可能★ネットに掲載されている物件は全てご紹介可能です!!
|
大阪府松原市一津屋4丁目
近鉄南大阪線/恵我ノ荘 徒歩10分
|
||||
| 賃料 | 5.3万円 | 敷金/礼金 | 無料 / 無料 | |
|---|---|---|---|---|
| 共益費 | 5,000円 | 保証金/敷引 | -/- | |
| 階層 / 方位 | 1階/地上3階建 / - | 間取 / 面積 | 1R / 23.4m² | |
| 種別 / 構造 | アパート | 築年数 | 築1年以内(2024年12月) | |
| 特徴 | 礼金なし 敷金なし バス・トイレ別 エアコン オートロック 駐車場あり 即入居可 | |||
ボスコヴィラ[301号室]
POINT!◆南河内エリアでのお部屋探しは「マイルーム本店」にお任せください◆ 【お問合せは072-931-0166まで】
|
大阪府松原市一津屋4丁目
近鉄南大阪線/恵我ノ荘 徒歩11分
|
||||
| 賃料 | 5.5万円 | 敷金/礼金 | 無料 / 無料 | |
|---|---|---|---|---|
| 共益費 | 5,000円 | 保証金/敷引 | -/- | |
| 階層 / 方位 | 3階/地上3階建 / - | 間取 / 面積 | 1K / 23.4m² | |
| 種別 / 構造 | アパート | 築年数 | 築1年以内(2024年12月) | |
| 特徴 | 礼金なし 敷金なし オートロック 駐車場あり ペット相談 | |||
エリア・賃料・間取り・駅徒歩が近いおすすめ物件一覧
大阪府松原市 | 南大阪線 | 55,000円前後 | 駅徒歩15分以内 | 1R〜1DK
のおすすめ物件だぶ!
|
大阪府松原市上田7丁目
近鉄南大阪線/河内松原 徒歩9分
|
||||
| 賃料 | 5.1万円 | 敷金/礼金 | 無料 / 2ヶ月 | |
|---|---|---|---|---|
| 共益費 | 3,000円 | 保証金/敷引 | -/- | |
| 階層 / 方位 | 1階/地上2階建 / 東 | 間取 / 面積 | 1K / 24.86m² | |
| 種別 / 構造 | アパート | 築年数 | 2017年11月 | |
| 特徴 | 敷金なし バス・トイレ別 エアコン 駐車場あり 即入居可 | |||
ただいま1人が検討中!
|
大阪府松原市河合1丁目
近鉄南大阪線/高見ノ里 徒歩15分
|
||||
| 賃料 | 5.5万円 | 敷金/礼金 | 無料 / 無料 | |
|---|---|---|---|---|
| 共益費 | 8,500円 | 保証金/敷引 | -/- | |
| 階層 / 方位 | 1階/地上2階建 / - | 間取 / 面積 | 1R / 30.95m² | |
| 種別 / 構造 | アパート | 築年数 | 新築(2025年06月) | |
| 特徴 | 礼金なし 敷金なし 新築 角部屋 バス・トイレ別 エアコン 駐車場あり 即入居可 | |||
ただいま4人が検討中!
|
大阪府松原市高見の里2丁目
近鉄南大阪線/高見ノ里 徒歩4分
|
||||
| 賃料 | 5.7万円 | 敷金/礼金 | 無料 / 無料 | |
|---|---|---|---|---|
| 共益費 | 6,000円 | 保証金/敷引 | -/- | |
| 階層 / 方位 | 2階/地上3階建 / - | 間取 / 面積 | 1K / 30.95m² | |
| 種別 / 構造 | アパート | 築年数 | 2020年02月 | |
| 特徴 | 礼金なし 敷金なし 駅徒歩5分 バス・トイレ別 エアコン オートロック 駐車場あり 即入居可 | |||
ただいま1人が検討中!
|
大阪府松原市阿保3丁目
近鉄南大阪線/河内松原 徒歩10分
|
||||
| 賃料 | 5.8万円 | 敷金/礼金 | 無料 / 6.0万円 | |
|---|---|---|---|---|
| 共益費 | 2,000円 | 保証金/敷引 | -/- | |
| 階層 / 方位 | 1階/地上2階建 / - | 間取 / 面積 | 1DK / 20.0m² | |
| 種別 / 構造 | アパート | 築年数 | 1946年11月 | |
| 特徴 | 敷金なし バス・トイレ別 駐車場あり 即入居可 | |||
ただいま1人が検討中!
|
大阪府松原市天美東9丁目
近鉄南大阪線/河内天美 徒歩5分
|
||||
| 賃料 | 5.0万円 | 敷金/礼金 | 無料 / 無料 | |
|---|---|---|---|---|
| 共益費 | 5,000円 | 保証金/敷引 | -/- | |
| 階層 / 方位 | 1階/地上3階建 / - | 間取 / 面積 | 1K / 23.45m² | |
| 種別 / 構造 | マンション | 築年数 | 2018年02月 | |
| 特徴 | 礼金なし 敷金なし 駅徒歩5分 バス・トイレ別 エアコン 駐車場あり 即入居可 | |||
ただいま1人が検討中!
|
大阪府松原市上田4丁目
近鉄南大阪線/河内松原 徒歩5分
|
||||
| 賃料 | 5.0万円 | 敷金/礼金 | 無料 / 無料 | |
|---|---|---|---|---|
| 共益費 | - | 保証金/敷引 | -/- | |
| 階層 / 方位 | 2階/地上3階建 / 南 | 間取 / 面積 | 1K / 21.0m² | |
| 種別 / 構造 | マンション | 築年数 | 1995年03月 | |
| 特徴 | 礼金なし 敷金なし 駅徒歩5分 南向き バス・トイレ別 エアコン オートロック 駐車場あり 保証人不要・代行 即入居可 | |||
ただいま2人が検討中!
|
大阪府松原市阿保4丁目
近鉄南大阪線/河内松原 徒歩6分
|
||||
| 賃料 | 5.0万円 | 敷金/礼金 | 無料 / 無料 | |
|---|---|---|---|---|
| 共益費 | 3,000円 | 保証金/敷引 | -/- | |
| 階層 / 方位 | 2階/地上3階建 / 東 | 間取 / 面積 | 1R / 28.4m² | |
| 種別 / 構造 | マンション | 築年数 | 1975年02月 | |
| 特徴 | 礼金なし 敷金なし バス・トイレ別 エアコン 駐車場あり 即入居可 | |||
ただいま1人が検討中!
|
大阪府松原市天美南3丁目
近鉄南大阪線/河内天美 徒歩4分
|
||||
| 賃料 | 5.3万円 | 敷金/礼金 | 無料 / 無料 | |
|---|---|---|---|---|
| 共益費 | - | 保証金/敷引 | -/- | |
| 階層 / 方位 | 3階/地上4階建 / 西 | 間取 / 面積 | 1R / 33.95m² | |
| 種別 / 構造 | マンション | 築年数 | 1973年05月 | |
| 特徴 | 礼金なし 敷金なし 駅徒歩5分 バス・トイレ別 駐車場あり 即入居可 | |||
ただいま1人が検討中!
|
大阪府松原市上田5丁目
近鉄南大阪線/河内松原 徒歩6分
|
||||
| 賃料 | 5.0万円 | 敷金/礼金 | 無料 / 1ヶ月 | |
|---|---|---|---|---|
| 共益費 | 3,000円 | 保証金/敷引 | -/- | |
| 階層 / 方位 | 3階/地上3階建 / 東 | 間取 / 面積 | 1K / 23.94m² | |
| 種別 / 構造 | マンション | 築年数 | 2006年09月 | |
| 特徴 | 敷金なし バス・トイレ別 エアコン 駐車場あり | |||
ただいま1人が検討中!
|
大阪府松原市一津屋4丁目
近鉄南大阪線/恵我ノ荘 徒歩10分
|
||||
| 賃料 | 5.3万円 | 敷金/礼金 | 無料 / 5.5万円 | |
|---|---|---|---|---|
| 共益費 | 2,900円 | 保証金/敷引 | -/- | |
| 階層 / 方位 | 1階/地上2階建 / 南 | 間取 / 面積 | 1K / 35.97m² | |
| 種別 / 構造 | アパート | 築年数 | 2015年03月 | |
| 特徴 | 敷金なし 南向き バス・トイレ別 エアコン 駐車場あり 即入居可 | |||
ただいま1人が検討中!
|
大阪府松原市天美西3丁目
近鉄南大阪線/河内天美 徒歩18分
|
||||
| 賃料 | 5.5万円 | 敷金/礼金 | 無料 / 1ヶ月 | |
|---|---|---|---|---|
| 共益費 | 2,300円 | 保証金/敷引 | -/- | |
| 階層 / 方位 | 1階/地上2階建 / - | 間取 / 面積 | 1R / 42.91m² | |
| 種別 / 構造 | アパート | 築年数 | 2011年11月 | |
| 特徴 | 敷金なし 角部屋 バス・トイレ別 エアコン 駐車場あり 保証人不要・代行 即入居可 | |||
ただいま1人が検討中!
|
大阪府松原市天美南6丁目
近鉄南大阪線/河内天美 徒歩5分
|
||||
| 賃料 | 4.8万円 | 敷金/礼金 | 無料 / 10.0万円 | |
|---|---|---|---|---|
| 共益費 | - | 保証金/敷引 | -/- | |
| 階層 / 方位 | 4階/地上5階建 / 南 | 間取 / 面積 | 1DK / 23.0m² | |
| 種別 / 構造 | マンション | 築年数 | 1990年12月 | |
| 特徴 | 敷金なし 駅徒歩5分 角部屋 南向き バス・トイレ別 エアコン 駐車場あり 即入居可 ペット相談 | |||
ただいま2人が検討中!



