アーティックス門司ヘリテイジ[1707号室]
POINT!セキュリティ面は、TVインターホン・オートロックなど充実しているので安心して生活できます◎室内設備は洗面所独立・浴室乾燥機・食器洗乾燥機など充実した設備を備え付けています◎クローゼット付きの物件です◎管理会社が定期的に巡回しています◎学生や友達同士で一緒に暮らせるお住まいです◎青春を謳歌するならこちらの物件◎こちらは3LDKの物件です◎陽当りの良さが魅力の物件です◎火を使わないIHを使用できるので、ガス漏れなどの心配なく安心してご利用いただけます◎駅までの道は平坦なので、通勤・通学に便利です(*´ω`*)
| 福岡県北九州市門司区大里本町3丁目 
                          山陽本線/門司 徒歩2分
                         | ||||
| 賃料 | 15.0万円 | 敷金/礼金 | 無料 / 2ヶ月 | |
|---|---|---|---|---|
| 共益費 | - | 保証金/敷引 | -/- | |
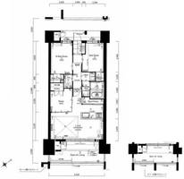
| 階層 / 方位 | 17階/地上19階建 / 東 | 間取 / 面積 | 3LDK / 69.79m² | |
| 種別 / 構造 | マンション | 築年数 | 2023年01月 | |
| 特徴 | 敷金なし 駅徒歩5分 バス・トイレ別 オートロック 駐車場あり 即入居可 | |||
| 本物件について | こちらの物件は山陽本線の門司駅より徒歩で2分の場所にあるマンションです。2階以上の物件のため、1階よりも防犯面で安心することが出来ることと、換気などがしやすいため、風通しがいいという点で人気があります。2人入居可、即入居可のため、とても人気の物件となっております。キッチンは、システムキッチン、カウンターキッチンになります。部屋の設備としては、バス・トイレ別、浴室乾燥機、独立洗面台、温水洗浄便座があります。床暖房があるため、部屋のどこにいても暖かく過ごすことが出来ます。セキュリティーとしては、オートロック、TVドアホンがあります。部屋の設備としては、フローリング、室内洗濯機置場、エレベーター、駐車場ありがあります。 | |||
ただいま3人が検討中!
アーティックス門司ヘリテイジ
POINT!敷金(保証金)0円!通勤・通学に便利な門司駅徒歩1分の好立地。さらに、駐車場付きなので車通勤にも便利です。宅配ボックスも完備されており、不在時でも荷物を受け取れる安心の設備が整っています。
| 福岡県北九州市門司区大里本町3丁目 山陽本線/門司 門司駅前バス停から徒歩2分 | ||||
| 賃料 | 15.0万円 | 敷金/礼金 | 無料 / 2ヶ月 | |
|---|---|---|---|---|
| 共益費 | - | 保証金/敷引 | -/- | |
| 階層 / 方位 | 17階/地上19階建 / 南東 | 間取 / 面積 | 3LDK / 69.79m² | |
| 種別 / 構造 | マンション | 築年数 | 2023年01月 | |
| 特徴 | 敷金なし 南向き バス・トイレ別 オートロック 駐車場あり 即入居可 ペット相談 | |||


 
 
 
 

