ザ・パークハビオ渋谷クロス
POINT!★2023年賃貸仲介件数全国第2位★首都圏に強いタウンハウジングがご案内させていただきます!
|
東京都目黒区青葉台3丁目1-1
山手線/渋谷 徒歩11分
|
||||
| 賃料 | 24.2万円 | 敷金/礼金 | 1ヶ月 / 1ヶ月 | |
|---|---|---|---|---|
| 共益費 | 1.5万円 | 保証金/敷引 | -/- | |
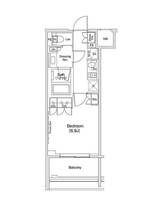
| 階層 / 方位 | 10階/地上11階建 / 南西 | 間取 / 面積 | 1LDK / 32.22m² | |
| 種別 / 構造 | マンション | 築年数 | 2023年01月 | |
| 特徴 | 駅徒歩5分 南向き バス・トイレ別 エアコン オートロック 駐車場あり 保証人不要・代行 即入居可 ペット相談 楽器相談 | |||
| 本物件について |
こちらの物件は山手線の渋谷駅より徒歩で11分の場所にあるマンションです。2階以上の物件のため、1階よりも防犯面で安心することが出来ることと、換気などがしやすいため、風通しがいいという点で人気があります。即入居可、保証人不要・代行のため、とても人気の物件となっております。キッチンには、システムキッチンがあります。部屋の設備としては、バス・トイレ別、独立洗面台、温水洗浄便座があります。エアコンが既に設置されているため、初期費用を抑えることが出来ます。収納としては、ウォークインクローゼットがあるため、大きな荷物を収納することが出来ます。そしてインターネット対応しています。セキュリティーとしては、オートロック、TVドアホン、宅配ボックスがあります。部屋の設備としては、フローリング、室内洗濯機置場、バルコニー、エレベーター、駐車場あり、駐輪場ありがあります。 |
|||
ただいま1人が検討中!
ザ・パークハビオ渋谷クロス
POINT!中野坂上店ではこちらのお部屋は仲介手数料55%(税込)です!
|
東京都目黒区青葉台3丁目
湘南新宿ライン宇須/渋谷 徒歩11分
|
||||
| 賃料 | 38.5万円 | 敷金/礼金 | 1ヶ月 / 1ヶ月 | |
|---|---|---|---|---|
| 共益費 | 2.0万円 | 保証金/敷引 | -/- | |
| 階層 / 方位 | 10階/地上11階建 / 北東 | 間取 / 面積 | 2LDK / 50.84m² | |
| 種別 / 構造 | マンション | 築年数 | 2022年12月 | |
| 特徴 | バス・トイレ別 エアコン オートロック 駐車場あり ペット相談 楽器相談 | |||
ザ・パークハビオ渋谷クロス
POINT!共用部には宅配ボックスが付いているため、自分の好きなタイミングで荷物を受け取ることができます。セキュリティ面は、TVインターホン・オートロックなどを設置しているので安全面でも優れております。収納はクロゼット・シューズボックスなどが備え付けられているので、衣類や日用品の収納に重宝します。室内設備は浴室乾燥機・洗面所独立など豊富に揃っており、過ごしやすいお部屋になっております。駅までのアクセスが良い、徒歩11分のところに位置する物件です。当物件は空家ですので、内覧もスムーズです。忙しい日でもゴミ出しをサクッと終えられるように、敷地内にゴミ置き場を備えております。引越し当日から夜も明るい照明付きのお部屋。初期費用のカード決済ができます。犯罪を未然に防ぐことができる防犯カメラ付き物件です。敷地内に駐車スペースの空きがありますので、車がある方にも安心していただけます。
|
東京都目黒区青葉台3丁目
山手線/渋谷 徒歩13分
|
||||
| 賃料 | 24.2万円 | 敷金/礼金 | 1ヶ月 / 1ヶ月 | |
|---|---|---|---|---|
| 共益費 | 1.5万円 | 保証金/敷引 | -/- | |
| 階層 / 方位 | 10階/地上11階建 / 南西 | 間取 / 面積 | 1LDK / 32.22m² | |
| 種別 / 構造 | マンション | 築年数 | 2022年12月 | |
| 特徴 | 南向き バス・トイレ別 エアコン オートロック 駐車場あり 保証人不要・代行 即入居可 ペット相談 楽器相談 | |||
ザ・パークハビオ渋谷クロス
POINT!★ペット飼育相談可★楽器相談可★SOHO相談可★ネット無料★ 【内見予約可能】お問合せは渋谷区・港区・目黒区特化のリアルビジョンまで!!掲載物件以外も紹介可能です!
|
東京都目黒区青葉台3
JR山手線/渋谷駅 歩8分
|
||||
| 賃料 | 26.5万円 | 敷金/礼金 | 1ヶ月 / 1ヶ月 | |
|---|---|---|---|---|
| 共益費 | 1.5万円 | 保証金/敷引 | -/- | |
| 階層 / 方位 | 7階/地上11階建 / 南西 | 間取 / 面積 | 1LDK / 40.13m² | |
| 種別 / 構造 | マンション | 築年数 | 2023年01月 | |
| 特徴 | 南向き バス・トイレ別 エアコン オートロック 駐車場あり 保証人不要・代行 ペット相談 楽器相談 | |||
ザ・パークハビオ渋谷クロス
POINT!★築浅★ペット飼育相談可★楽器相談可★SOHO相談可★ 【内見予約可能】お問合せは渋谷区・港区・目黒区特化のリアルビジョンまで!!掲載物件以外も紹介可能です!
|
東京都目黒区青葉台3
JR山手線/渋谷駅 歩8分
|
||||
| 賃料 | 24.5万円 | 敷金/礼金 | 1ヶ月 / 1ヶ月 | |
|---|---|---|---|---|
| 共益費 | 1.0万円 | 保証金/敷引 | -/- | |
| 階層 / 方位 | 7階/地上11階建 / 北東 | 間取 / 面積 | 1DK / 37.5m² | |
| 種別 / 構造 | マンション | 築年数 | 2023年01月 | |
| 特徴 | バス・トイレ別 エアコン オートロック 駐車場あり 保証人不要・代行 ペット相談 楽器相談 | |||
POINT!☆ネット無料☆ペット・楽器・SOHO相談可☆「渋谷」駅徒歩♪ ☆初期費用クレジット決済もご相談ください◎オンライン内見・契約承ります☆
|
東京都目黒区青葉台3
JR山手線/渋谷駅 歩11分
|
||||
| 賃料 | 28.5万円 | 敷金/礼金 | 1ヶ月 / 1ヶ月 | |
|---|---|---|---|---|
| 共益費 | 1.5万円 | 保証金/敷引 | -/- | |
| 階層 / 方位 | 10階/地上11階建 / 南東 | 間取 / 面積 | 1LDK / 38.18m² | |
| 種別 / 構造 | マンション | 築年数 | 2022年12月 | |
| 特徴 | 南向き バス・トイレ別 エアコン オートロック 駐車場あり 保証人不要・代行 ペット相談 楽器相談 | |||
ザ・パークハビオ渋谷クロス
POINT!★築浅★ペット飼育相談可★楽器相談可★SOHO相談可★ 【内見予約可能】お問合せは渋谷区・港区・目黒区特化のリアルビジョンまで!!掲載物件以外も紹介可能です!
|
東京都目黒区青葉台3
JR山手線/渋谷駅 歩8分
|
||||
| 賃料 | 17.8万円 | 敷金/礼金 | 1ヶ月 / 1ヶ月 | |
|---|---|---|---|---|
| 共益費 | 1.0万円 | 保証金/敷引 | -/- | |
| 階層 / 方位 | 6階/地上11階建 / 南西 | 間取 / 面積 | 1K / 25.56m² | |
| 種別 / 構造 | マンション | 築年数 | 2023年01月 | |
| 特徴 | 南向き バス・トイレ別 エアコン オートロック 保証人不要・代行 ペット相談 楽器相談 | |||
ザ・パークハビオ渋谷クロス
POINT!★築浅★ペット・楽器・SOHO相談可★エアコン2基★駐車場★ 【内見予約可能】お問合せは渋谷区・港区・目黒区特化のリアルビジョンまで!!掲載物件以外も紹介可能です!
|
東京都目黒区青葉台3
JR山手線/渋谷駅 歩8分
|
||||
| 賃料 | 21.0万円 | 敷金/礼金 | 1ヶ月 / 1ヶ月 | |
|---|---|---|---|---|
| 共益費 | 1.5万円 | 保証金/敷引 | -/- | |
| 階層 / 方位 | 9階/地上11階建 / 南西 | 間取 / 面積 | 1LDK / 33.47m² | |
| 種別 / 構造 | マンション | 築年数 | 2023年01月 | |
| 特徴 | 南向き バス・トイレ別 エアコン オートロック 駐車場あり 保証人不要・代行 ペット相談 楽器相談 | |||
POINT!不動産サービスの本質を追求し見極め、価値あるアテンドをお約束 都心部の物件情報は随時流動しています。ハイクラス物件を中心とした専門のプロフェッショナルエージェントが、迅速かつ的確なご提案から諸条件交渉や細部に至るニーズまで、お客様の「住」の価値の最大化に努めます
|
東京都目黒区青葉台3
JR山手線/渋谷駅 歩8分
|
||||
| 賃料 | 16.0万円 | 敷金/礼金 | 1ヶ月 / 1ヶ月 | |
|---|---|---|---|---|
| 共益費 | 1.0万円 | 保証金/敷引 | -/- | |
| 階層 / 方位 | 5階/地上11階建 / 南西 | 間取 / 面積 | 1K / 25.56m² | |
| 種別 / 構造 | マンション | 築年数 | 2023年01月 | |
| 特徴 | 南向き バス・トイレ別 エアコン オートロック 駐車場あり 保証人不要・代行 ペット相談 楽器相談 | |||
POINT!☆ネット無料☆ペット・楽器・SOHO相談可☆「渋谷」駅徒歩♪ ☆初期費用クレジット決済もご相談ください◎オンライン内見・契約承ります☆
|
東京都目黒区青葉台3
JR山手線/渋谷駅 歩11分
|
||||
| 賃料 | 24.0万円 | 敷金/礼金 | 1ヶ月 / 1ヶ月 | |
|---|---|---|---|---|
| 共益費 | 1.0万円 | 保証金/敷引 | -/- | |
| 階層 / 方位 | 4階/地上11階建 / 北東 | 間取 / 面積 | 1DK / 37.79m² | |
| 種別 / 構造 | マンション | 築年数 | 2022年12月 | |
| 特徴 | 角部屋 バス・トイレ別 エアコン オートロック 駐車場あり 保証人不要・代行 即入居可 ペット相談 楽器相談 | |||
ザ・パークハビオ渋谷クロス[921号室]
POINT!こちらの物件のお問い合わせはタウンハウジングまで♪
|
東京都目黒区青葉台3丁目1-1
京王電鉄井の頭線/神泉 徒歩5分
|
||||
| 賃料 | 21.0万円 | 敷金/礼金 | 1ヶ月 / 1ヶ月 | |
|---|---|---|---|---|
| 共益費 | 1.5万円 | 保証金/敷引 | -/- | |
| 階層 / 方位 | 9階/地上11階建 / 南西 | 間取 / 面積 | 1LDK / 33.47m² | |
| 種別 / 構造 | マンション | 築年数 | 2023年01月 | |
| 特徴 | 駅徒歩5分 南向き バス・トイレ別 エアコン オートロック 駐車場あり 保証人不要・代行 ペット相談 楽器相談 | |||
エリア・賃料・間取り・駅徒歩が近いおすすめ物件一覧
東京都渋谷区 | 山手線・井の頭線・田園都市線 | 242,000円前後 | 駅徒歩10分以内 | 1K〜2K
のおすすめ物件だぶ!
|
東京都目黒区青葉台3
JR山手線/渋谷駅 歩11分
|
||||
| 賃料 | 24.5万円 | 敷金/礼金 | 1ヶ月 / 1ヶ月 | |
|---|---|---|---|---|
| 共益費 | 1.0万円 | 保証金/敷引 | -/- | |
| 階層 / 方位 | 7階/地上11階建 / 北東 | 間取 / 面積 | 1DK / 37.5m² | |
| 種別 / 構造 | マンション | 築年数 | 2022年12月 | |
| 特徴 | バス・トイレ別 エアコン オートロック 駐車場あり 保証人不要・代行 ペット相談 楽器相談 | |||
ただいま1人が検討中!
|
東京都目黒区大橋2丁目16-20
東急田園都市線/池尻大橋 徒歩5分
|
||||
| 賃料 | 23.5万円 | 敷金/礼金 | 1ヶ月 / 1ヶ月 | |
|---|---|---|---|---|
| 共益費 | 7,000円 | 保証金/敷引 | -/- | |
| 階層 / 方位 | 2階/地上14階建 / 南東 | 間取 / 面積 | 1LDK / 52.44m² | |
| 種別 / 構造 | マンション | 築年数 | 2006年03月 | |
| 特徴 | 駅徒歩5分 角部屋 南向き バス・トイレ別 エアコン オートロック 保証人不要・代行 | |||
ただいま1人が検討中!
|
東京都目黒区大橋1丁目6-4
東急田園都市線/池尻大橋 徒歩7分
|
||||
| 賃料 | 24.7万円 | 敷金/礼金 | 1ヶ月 / 無料 | |
|---|---|---|---|---|
| 共益費 | 1.5万円 | 保証金/敷引 | -/- | |
| 階層 / 方位 | 8階/地上12階建 / 南西 | 間取 / 面積 | 1LDK / 38.43m² | |
| 種別 / 構造 | マンション | 築年数 | 新築(2025年10月) | |
| 特徴 | 礼金なし 新築 南向き バス・トイレ別 エアコン オートロック 保証人不要・代行 即入居可 ペット相談 | |||
ただいま1人が検討中!
|
東京都目黒区大橋2丁目16-20
東急田園都市線/池尻大橋 徒歩5分
|
||||
| 賃料 | 23.5万円 | 敷金/礼金 | 1ヶ月 / 1ヶ月 | |
|---|---|---|---|---|
| 共益費 | 7,000円 | 保証金/敷引 | -/- | |
| 階層 / 方位 | 2階/地上14階建 / 南 | 間取 / 面積 | 1LDK / 52.44m² | |
| 種別 / 構造 | マンション | 築年数 | 2006年03月 | |
| 特徴 | 駅徒歩5分 角部屋 南向き バス・トイレ別 エアコン オートロック 駐車場あり 保証人不要・代行 | |||
ただいま1人が検討中!
|
東京都目黒区大橋1丁目6
東急田園都市線/池尻大橋 徒歩7分
|
||||
| 賃料 | 24.7万円 | 敷金/礼金 | 1ヶ月 / 無料 | |
|---|---|---|---|---|
| 共益費 | 1.5万円 | 保証金/敷引 | -/- | |
| 階層 / 方位 | 8階/地上12階建 / 南西 | 間取 / 面積 | 1LDK / 38.43m² | |
| 種別 / 構造 | マンション | 築年数 | 新築(2025年10月) | |
| 特徴 | 礼金なし 新築 南向き バス・トイレ別 エアコン オートロック 保証人不要・代行 即入居可 ペット相談 | |||
ただいま1人が検討中!
|
東京都目黒区大橋1丁目6
東急田園都市線/池尻大橋 徒歩7分
|
||||
| 賃料 | 24.5万円 | 敷金/礼金 | 1ヶ月 / 無料 | |
|---|---|---|---|---|
| 共益費 | 1.5万円 | 保証金/敷引 | -/- | |
| 階層 / 方位 | 6階/地上12階建 / 南西 | 間取 / 面積 | 1LDK / 38.43m² | |
| 種別 / 構造 | マンション | 築年数 | 新築(2025年10月) | |
| 特徴 | 礼金なし 新築 南向き バス・トイレ別 エアコン オートロック 保証人不要・代行 即入居可 ペット相談 | |||
ただいま1人が検討中!
|
東京都目黒区大橋1丁目6
東急田園都市線/池尻大橋 徒歩7分
|
||||
| 賃料 | 24.0万円 | 敷金/礼金 | 1ヶ月 / 無料 | |
|---|---|---|---|---|
| 共益費 | 1.5万円 | 保証金/敷引 | -/- | |
| 階層 / 方位 | 2階/地上12階建 / 南西 | 間取 / 面積 | 1LDK / 38.43m² | |
| 種別 / 構造 | マンション | 築年数 | 新築(2025年10月) | |
| 特徴 | 礼金なし 新築 南向き バス・トイレ別 エアコン オートロック 保証人不要・代行 即入居可 ペット相談 | |||
ただいま1人が検討中!
|
東京都目黒区大橋1丁目6
東急田園都市線/池尻大橋 徒歩7分
|
||||
| 賃料 | 24.4万円 | 敷金/礼金 | 1ヶ月 / 無料 | |
|---|---|---|---|---|
| 共益費 | 1.5万円 | 保証金/敷引 | -/- | |
| 階層 / 方位 | 5階/地上12階建 / 南西 | 間取 / 面積 | 1LDK / 38.43m² | |
| 種別 / 構造 | マンション | 築年数 | 新築(2025年10月) | |
| 特徴 | 礼金なし 新築 南向き バス・トイレ別 エアコン オートロック 保証人不要・代行 即入居可 ペット相談 | |||
ただいま1人が検討中!
|
東京都目黒区大橋2丁目17-5
東急田園都市線/池尻大橋 徒歩4分
|
||||
| 賃料 | 23.5万円 | 敷金/礼金 | 1ヶ月 / 1ヶ月 | |
|---|---|---|---|---|
| 共益費 | 1.5万円 | 保証金/敷引 | -/- | |
| 階層 / 方位 | 2階/地上8階建 / 北 | 間取 / 面積 | 1LDK / 36.76m² | |
| 種別 / 構造 | マンション | 築年数 | 新築(2025年01月) | |
| 特徴 | 新築 駅徒歩5分 バス・トイレ別 エアコン オートロック 駐車場あり 保証人不要・代行 即入居可 ペット相談 | |||
ただいま1人が検討中!
|
東京都目黒区青葉台4丁目4-12
京王電鉄井の頭線/神泉 徒歩7分
|
||||
| 賃料 | 23.8万円 | 敷金/礼金 | 1ヶ月 / 1ヶ月 | |
|---|---|---|---|---|
| 共益費 | 2.0万円 | 保証金/敷引 | -/- | |
| 階層 / 方位 | 11階/地上18階建 / 北 | 間取 / 面積 | 1LDK / 34.77m² | |
| 種別 / 構造 | マンション | 築年数 | 2022年10月 | |
| 特徴 | バス・トイレ別 エアコン オートロック 駐車場あり 保証人不要・代行 即入居可 ペット相談 | |||
ただいま1人が検討中!
|
東京都目黒区大橋1丁目6-4
東急田園都市線/池尻大橋 徒歩7分
|
||||
| 賃料 | 24.4万円 | 敷金/礼金 | 1ヶ月 / 無料 | |
|---|---|---|---|---|
| 共益費 | 1.5万円 | 保証金/敷引 | -/- | |
| 階層 / 方位 | 5階/地上12階建 / 南西 | 間取 / 面積 | 1LDK / 38.43m² | |
| 種別 / 構造 | マンション | 築年数 | 新築(2025年10月) | |
| 特徴 | 礼金なし 新築 南向き バス・トイレ別 エアコン オートロック 保証人不要・代行 即入居可 ペット相談 | |||
ただいま1人が検討中!
|
東京都目黒区大橋1丁目6-4
東急田園都市線/池尻大橋 徒歩7分
|
||||
| 賃料 | 24.0万円 | 敷金/礼金 | 1ヶ月 / 無料 | |
|---|---|---|---|---|
| 共益費 | 1.5万円 | 保証金/敷引 | -/- | |
| 階層 / 方位 | 2階/地上12階建 / 南西 | 間取 / 面積 | 1LDK / 38.43m² | |
| 種別 / 構造 | マンション | 築年数 | 新築(2025年10月) | |
| 特徴 | 礼金なし 新築 南向き バス・トイレ別 エアコン オートロック 保証人不要・代行 即入居可 ペット相談 | |||
ただいま1人が検討中!



