朝日プラザCITYウェストヒル神戸B棟
POINT!収納はシューズボックス・クロゼットなどが備え付けられているので、衣類や日用品の収納に重宝します。化粧品や洗面道具といった小物をまとめて収納できる独立洗面台があります。【管理人常駐】信頼ができて防犯面でも効果大。緑豊かな住宅地でマンションを探してみてはいかがですか。シンク下のスペースをより無駄なく利用できるシステムキッチンを採用しております。風通しが良いマンションで快適な生活を。現在空家となっておりますので、お早めのご入居が可能となっております。3口コンロの物件は手間のかかる料理もまとめて作れるので料理好きな人におすすめです。2駅利用できる場所にあるので利便性が高いです。
|
兵庫県神戸市西区池上1丁目
神戸市西神山手線/伊川谷 徒歩33分
|
||||
| 賃料 | 6.0万円 | 敷金/礼金 | 無料 / 1ヶ月 | |
|---|---|---|---|---|
| 共益費 | - | 保証金/敷引 | -/- | |
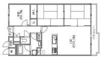
| 階層 / 方位 | 3階/地上14階建 / 南 | 間取 / 面積 | 3LDK / 69.92m² | |
| 種別 / 構造 | マンション | 築年数 | 1990年09月 | |
| 特徴 | 敷金なし 南向き バス・トイレ別 | |||
| 本物件について |
こちらの物件は神戸市西神山手線の伊川谷駅より徒歩で33分の場所にあるマンションです。また、2階以上、南向きの物件です。2人入居可物件のため、カップルやご夫婦さんにおすすめです!キッチンは、システムキッチン、カウンターキッチンになります。部屋の設備としては、バス・トイレ別、独立洗面台、温水洗浄便座があります。そしてインターネット対応しています。部屋の設備としては、フローリング、室内洗濯機置場、エレベーター、駐輪場ありがあります。 |
|||
ただいま6人が検討中!
朝日プラザCITYウェストヒル神戸B棟
POINT!初期費用分割サービス実施中! お問い合わせはへお下さい!
|
兵庫県神戸市西区池上1丁目
神戸市西神山手線/伊川谷 徒歩33分
|
||||
| 賃料 | 8.0万円 | 敷金/礼金 | 無料 / 1ヶ月 | |
|---|---|---|---|---|
| 共益費 | - | 保証金/敷引 | -/- | |
| 階層 / 方位 | 2階/地上14階建 / 南 | 間取 / 面積 | 1LDK / 67.24m² | |
| 種別 / 構造 | マンション | 築年数 | 1990年09月 | |
| 特徴 | 敷金なし 南向き バス・トイレ別 | |||
エリア・賃料・間取り・駅徒歩が近いおすすめ物件一覧
兵庫県神戸市西区 | 西神山手線 | 60,000円前後 | 駅徒歩38分以内 | 3DK〜3SLDK
のおすすめ物件だぶ!
|
兵庫県神戸市西区池上1丁目
神戸市西神山手線/伊川谷 バス6分 池上2丁目バス停から徒歩3分
|
||||
| 賃料 | 6.2万円 | 敷金/礼金 | 無料 / 無料 | |
|---|---|---|---|---|
| 共益費 | 8,000円 | 保証金/敷引 | -/- | |
| 階層 / 方位 | 5階/地上5階建 / - | 間取 / 面積 | 3LDK / 65.49m² | |
| 種別 / 構造 | マンション | 築年数 | 1992年02月 | |
| 特徴 | 礼金なし 敷金なし バス・トイレ別 駐車場あり 即入居可 ペット相談 | |||
ただいま6人が検討中!
|
兵庫県神戸市西区伊川谷町潤和
山陽本線/明石 バス15分 バス停から徒歩3分
|
||||
| 賃料 | 6.5万円 | 敷金/礼金 | 無料 / 15.0万円 | |
|---|---|---|---|---|
| 共益費 | 2,000円 | 保証金/敷引 | -/- | |
| 階層 / 方位 | 1階/地上2階建 / 南 | 間取 / 面積 | 3DK / 77.84m² | |
| 種別 / 構造 | アパート | 築年数 | 1993年03月 | |
| 特徴 | 敷金なし 南向き バス・トイレ別 駐車場あり 即入居可 ペット相談 | |||
ただいま1人が検討中!
|
兵庫県神戸市西区玉津町高津橋
山陽本線/明石 バス10分 高津橋バス停から徒歩3分
|
||||
| 賃料 | 6.0万円 | 敷金/礼金 | 無料 / 無料 | |
|---|---|---|---|---|
| 共益費 | 1,000円 | 保証金/敷引 | -/- | |
| 階層 / 方位 | 2階/地上2階建 / 南 | 間取 / 面積 | 3LDK / 67.09m² | |
| 種別 / 構造 | アパート | 築年数 | 1998年03月 | |
| 特徴 | 礼金なし 敷金なし 角部屋 南向き バス・トイレ別 駐車場あり 即入居可 | |||
ただいま3人が検討中!
|
兵庫県神戸市西区南別府4丁目
山陽電気鉄道本線/大蔵谷 バス9分 南別府車庫バス停から徒歩39分
|
||||
| 賃料 | 5.3万円 | 敷金/礼金 | 無料 / 8.0万円 | |
|---|---|---|---|---|
| 共益費 | 3,000円 | 保証金/敷引 | -/- | |
| 階層 / 方位 | 2階/地上2階建 / 南東 | 間取 / 面積 | 3DK / 50.39m² | |
| 種別 / 構造 | アパート | 築年数 | 1994年12月 | |
| 特徴 | 敷金なし 南向き バス・トイレ別 駐車場あり | |||
ただいま2人が検討中!
|
兵庫県神戸市西区北別府3丁目
神戸市西神山手線/伊川谷 バス10分 前川橋バス停から徒歩6分
|
||||
| 賃料 | 6.2万円 | 敷金/礼金 | 無料 / 無料 | |
|---|---|---|---|---|
| 共益費 | 2,000円 | 保証金/敷引 | -/- | |
| 階層 / 方位 | 3階/地上3階建 / 南 | 間取 / 面積 | 3SLDK ※Sは納戸となります。 / 65.49m² | |
| 種別 / 構造 | マンション | 築年数 | 1988年12月 | |
| 特徴 | 礼金なし 敷金なし 南向き バス・トイレ別 駐車場あり | |||
ただいま2人が検討中!
|
兵庫県神戸市西区中野2丁目
山陽本線/明石 バス14分 バス停から徒歩11分
|
||||
| 賃料 | 5.6万円 | 敷金/礼金 | 無料 / 無料 | |
|---|---|---|---|---|
| 共益費 | 2,000円 | 保証金/敷引 | -/- | |
| 階層 / 方位 | 2階/地上2階建 / 南西 | 間取 / 面積 | 3DK / 52.84m² | |
| 種別 / 構造 | アパート | 築年数 | 1994年10月 | |
| 特徴 | 礼金なし 敷金なし 角部屋 南向き バス・トイレ別 駐車場あり 即入居可 ペット相談 | |||
ただいま1人が検討中!
|
兵庫県神戸市西区玉津町高津橋
山陽本線/明石 バス9分 西河原バス停から徒歩5分
|
||||
| 賃料 | 6.4万円 | 敷金/礼金 | 無料 / 無料 | |
|---|---|---|---|---|
| 共益費 | 5,000円 | 保証金/敷引 | -/- | |
| 階層 / 方位 | 4階/地上4階建 / 東 | 間取 / 面積 | 3LDK / 66.19m² | |
| 種別 / 構造 | マンション | 築年数 | 1997年03月 | |
| 特徴 | 礼金なし 敷金なし バス・トイレ別 駐車場あり ペット相談 | |||
|
兵庫県神戸市西区大津和1丁目
山陽本線/明石 バス19分 神戸学院大学バス停から徒歩8分
|
||||
| 賃料 | 5.3万円 | 敷金/礼金 | 無料 / 無料 | |
|---|---|---|---|---|
| 共益費 | 2,000円 | 保証金/敷引 | -/- | |
| 階層 / 方位 | 2階/地上4階建 / 南 | 間取 / 面積 | 3DK / 53.77m² | |
| 種別 / 構造 | マンション | 築年数 | 1988年04月 | |
| 特徴 | 礼金なし 敷金なし 南向き バス・トイレ別 エアコン ペット相談 | |||
ただいま1人が検討中!
|
兵庫県神戸市西区大津和2丁目
山陽本線/朝霧 バス10分 漆山バス停から徒歩3分
|
||||
| 賃料 | 6.2万円 | 敷金/礼金 | 無料 / 無料 | |
|---|---|---|---|---|
| 共益費 | 2,000円 | 保証金/敷引 | -/- | |
| 階層 / 方位 | 2階/地上4階建 / 南 | 間取 / 面積 | 3LDK / 65.49m² | |
| 種別 / 構造 | マンション | 築年数 | 1988年12月 | |
| 特徴 | 礼金なし 敷金なし 南向き バス・トイレ別 駐車場あり 即入居可 | |||
ただいま4人が検討中!
|
兵庫県神戸市西区北別府5丁目
山陽本線/明石 バス19分 白水東口バス停から徒歩5分
|
||||
| 賃料 | 6.3万円 | 敷金/礼金 | 無料 / 13.0万円 | |
|---|---|---|---|---|
| 共益費 | 1,000円 | 保証金/敷引 | -/- | |
| 階層 / 方位 | 2階/地上2階建 / - | 間取 / 面積 | 3DK / 57.22m² | |
| 種別 / 構造 | アパート | 築年数 | 1988年01月 | |
| 特徴 | 敷金なし バス・トイレ別 駐車場あり 即入居可 | |||
ただいま2人が検討中!
|
兵庫県神戸市西区池上4丁目
山陽本線/明石 バス21分 伊川谷連絡所前バス停から徒歩4分
|
||||
| 賃料 | 6.2万円 | 敷金/礼金 | 無料 / 無料 | |
|---|---|---|---|---|
| 共益費 | 2,200円 | 保証金/敷引 | -/- | |
| 階層 / 方位 | 2階/地上3階建 / 南 | 間取 / 面積 | 3DK / 66.98m² | |
| 種別 / 構造 | マンション | 築年数 | 1994年12月 | |
| 特徴 | 礼金なし 敷金なし 南向き バス・トイレ別 駐車場あり | |||
ただいま1人が検討中!
|
兵庫県神戸市西区玉津町高津橋
山陽本線/明石 バス13分 高津橋バス停から徒歩4分
|
||||
| 賃料 | 6.2万円 | 敷金/礼金 | 無料 / 無料 | |
|---|---|---|---|---|
| 共益費 | 1,000円 | 保証金/敷引 | -/- | |
| 階層 / 方位 | 2階/地上2階建 / 南 | 間取 / 面積 | 3DK / 67.09m² | |
| 種別 / 構造 | アパート | 築年数 | 1998年03月 | |
| 特徴 | 礼金なし 敷金なし 南向き バス・トイレ別 | |||
ただいま2人が検討中!



