LINX NARIMASU
POINT!☆掲載物件以外にも多数ご紹介出来ます☆ご希望のお部屋を全力でお探しさせて頂きます♪
|
東京都板橋区成増2丁目
東京地下鉄有楽町線/地下鉄成増 徒歩4分
|
||||
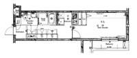
| 賃料 | 9.3万円 | 敷金/礼金 | 無料 / 1ヶ月 | |
|---|---|---|---|---|
| 共益費 | 1.1万円 | 保証金/敷引 | -/- | |
| 階層 / 方位 | 4階/地上4階建 / 南東 | 間取 / 面積 | 1K / 22.4m² | |
| 種別 / 構造 | マンション | 築年数 | 2006年03月 | |
| 特徴 | 敷金なし 駅徒歩5分 南向き バス・トイレ別 エアコン オートロック 保証人不要・代行 | |||
| 本物件について |
こちらの物件は東京地下鉄有楽町線の地下鉄成増駅より徒歩で4分の場所にあるマンションです。また、2階以上、最上階の物件です。保証人不要物件のため、保証人がいない場合でも契約の手続きが可能です。キッチンには、システムキッチンがあります。部屋の設備としては、バス・トイレ別、浴室乾燥機があります。エアコンが既に設置されているため、初期費用を抑えることが出来ます。そしてインターネット対応しています。セキュリティーとしては、オートロック、TVドアホン、宅配ボックスがあります。部屋の設備としては、フローリング、室内洗濯機置場、バルコニー、エレベーターがあります。 |
|||
ただいま2人が検討中!
LINX NARIMASU
POINT!『アパマンショップ本社直営店』の当店にお任せください!
|
東京都板橋区成増2丁目
東京地下鉄有楽町線/地下鉄成増 徒歩4分
|
||||
| 賃料 | 7.15万円 | 敷金/礼金 | 無料 / 無料 | |
|---|---|---|---|---|
| 共益費 | 1.5万円 | 保証金/敷引 | -/- | |
| 階層 / 方位 | 3階/地上6階建 / 南西 | 間取 / 面積 | 1K / 21.0m² | |
| 種別 / 構造 | マンション | 築年数 | 2006年03月 | |
| 特徴 | 礼金なし 敷金なし 駅徒歩5分 南向き バス・トイレ別 エアコン オートロック ペット相談 | |||
LINX NARIMASU
POINT!初期費用の分割・クレジットカード決済可能です! 都内全ての物件をご案内可能です。オンラインにて申込みから契約までのお手続きも。他社様掲載物件のお見積もり、物件提案のご要望など、お気軽にお問い合わせください。初期費用分割払いも承ります!
|
東京都板橋区成増2
東武東上線/成増駅 歩7分
|
||||
| 賃料 | 6.3万円 | 敷金/礼金 | 1ヶ月 / 1ヶ月 | |
|---|---|---|---|---|
| 共益費 | 1.2万円 | 保証金/敷引 | -/- | |
| 階層 / 方位 | 1階/地上4階建 / 南西 | 間取 / 面積 | 1K / 21.0m² | |
| 種別 / 構造 | マンション | 築年数 | 2006年03月 | |
| 特徴 | 南向き バス・トイレ別 エアコン オートロック 保証人不要・代行 | |||
LINX NARIMASU
POINT!★お部屋探しはタウンハウジングにお任せください★
|
東京都板橋区成増2丁目
東京地下鉄有楽町線/地下鉄成増 徒歩4分
|
||||
| 賃料 | 11.6万円 | 敷金/礼金 | 無料 / 1ヶ月 | |
|---|---|---|---|---|
| 共益費 | 1.0万円 | 保証金/敷引 | -/- | |
| 階層 / 方位 | 4階/地上4階建 / - | 間取 / 面積 | 1DK / 43.9m² | |
| 種別 / 構造 | マンション | 築年数 | 2006年03月 | |
| 特徴 | 敷金なし 駅徒歩5分 角部屋 バス・トイレ別 エアコン オートロック 保証人不要・代行 | |||
LINX NARIMASU
POINT!【仲介手数料無料 対象物件】 オンラインにて申込みから契約までのお手続きも可能です。入居日が合わずにお悩みの方、契約金のお見積もりや室内写真のご要望などお気軽にお問い合わせください。初期費用の分割払いも承ります。
|
東京都板橋区成増2
東京メトロ有楽町線/地下鉄成増駅 歩4分
|
||||
| 賃料 | 7.7万円 | 敷金/礼金 | 無料 / 1ヶ月 | |
|---|---|---|---|---|
| 共益費 | 1.0万円 | 保証金/敷引 | -/- | |
| 階層 / 方位 | 4階/地上4階建 / 北西 | 間取 / 面積 | 1K / 31.36m² | |
| 種別 / 構造 | マンション | 築年数 | 2006年03月 | |
| 特徴 | 敷金なし 駅徒歩5分 バス・トイレ別 エアコン オートロック 保証人不要・代行 即入居可 | |||
東京都板橋区成増2丁目の賃貸マンション
POINT!オートロック付きです!防犯面に配慮しております!
|
東京都板橋区成増2丁目
東京地下鉄有楽町線/地下鉄成増 徒歩5分
|
||||
| 賃料 | 7.15万円 | 敷金/礼金 | 無料 / 無料 | |
|---|---|---|---|---|
| 共益費 | 1.5万円 | 保証金/敷引 | -/- | |
| 階層 / 方位 | 3階/地上6階建 / 南西 | 間取 / 面積 | 1K / 21.0m² | |
| 種別 / 構造 | マンション | 築年数 | 2006年03月 | |
| 特徴 | 礼金なし 敷金なし 駅徒歩5分 南向き バス・トイレ別 エアコン オートロック ペット相談 | |||
LINX NARIMASU[401号室]
POINT!あなたの「住みたい」がきっと見つかる!利便性・住み心地を兼ね揃えた賃貸物件!お気軽にご相談ください。お部屋探しはタウンハウジングへお任せください!
|
東京都板橋区成増2丁目5-22
東京地下鉄有楽町線/地下鉄成増 徒歩5分
|
||||
| 賃料 | 11.6万円 | 敷金/礼金 | 無料 / 1ヶ月 | |
|---|---|---|---|---|
| 共益費 | 1.0万円 | 保証金/敷引 | -/- | |
| 階層 / 方位 | 4階/地上4階建 / - | 間取 / 面積 | 1DK / 43.9m² | |
| 種別 / 構造 | マンション | 築年数 | 2006年03月 | |
| 特徴 | 敷金なし 駅徒歩5分 角部屋 バス・トイレ別 エアコン オートロック 保証人不要・代行 | |||
エリア・賃料・間取り・駅徒歩が近いおすすめ物件一覧
東京都板橋区 | 有楽町線・東武東上線 | 93,000円前後 | 駅徒歩9分以内 | 1R〜1DK
のおすすめ物件だぶ!
|
東京都板橋区大山西町
東武鉄道東上線/大山 徒歩8分
|
||||
| 賃料 | 9.8万円 | 敷金/礼金 | 無料 / 1ヶ月 | |
|---|---|---|---|---|
| 共益費 | 1.2万円 | 保証金/敷引 | -/- | |
| 階層 / 方位 | 7階/地上10階建 / 西 | 間取 / 面積 | 1K / 29.79m² | |
| 種別 / 構造 | マンション | 築年数 | 2006年07月 | |
| 特徴 | 敷金なし バス・トイレ別 エアコン オートロック 駐車場あり 保証人不要・代行 | |||
|
東京都板橋区熊野町
東武鉄道東上線/大山 徒歩10分
|
||||
| 賃料 | 9.2万円 | 敷金/礼金 | 無料 / 1ヶ月 | |
|---|---|---|---|---|
| 共益費 | 8,000円 | 保証金/敷引 | -/- | |
| 階層 / 方位 | 4階/地上11階建 / 南 | 間取 / 面積 | 1K / 25.89m² | |
| 種別 / 構造 | マンション | 築年数 | 2018年03月 | |
| 特徴 | 敷金なし 南向き バス・トイレ別 エアコン オートロック 保証人不要・代行 ペット相談 | |||
ただいま6人が検討中!
|
東京都板橋区中丸町
東武鉄道東上線/大山 徒歩7分
|
||||
| 賃料 | 9.0万円 | 敷金/礼金 | 無料 / 無料 | |
|---|---|---|---|---|
| 共益費 | 1.0万円 | 保証金/敷引 | -/- | |
| 階層 / 方位 | 5階/地上5階建 / 南 | 間取 / 面積 | 1K / 24.36m² | |
| 種別 / 構造 | マンション | 築年数 | 2008年02月 | |
| 特徴 | 礼金なし 敷金なし 南向き バス・トイレ別 エアコン オートロック 駐車場あり 保証人不要・代行 | |||
ただいま1人が検討中!
|
東京都板橋区板橋2丁目
東京都三田線/板橋区役所前 徒歩5分
|
||||
| 賃料 | 9.7万円 | 敷金/礼金 | 無料 / 無料 | |
|---|---|---|---|---|
| 共益費 | 1.5万円 | 保証金/敷引 | -/- | |
| 階層 / 方位 | 3階/地上4階建 / - | 間取 / 面積 | 1K / 23.25m² | |
| 種別 / 構造 | マンション | 築年数 | 2019年05月 | |
| 特徴 | 礼金なし 敷金なし 駅徒歩5分 バス・トイレ別 エアコン オートロック 保証人不要・代行 ペット相談 楽器相談 | |||
ただいま10人以上が検討中!
|
東京都板橋区大山東町
東武鉄道東上線/大山 徒歩4分
|
||||
| 賃料 | 9.5万円 | 敷金/礼金 | 無料 / 1ヶ月 | |
|---|---|---|---|---|
| 共益費 | 1.0万円 | 保証金/敷引 | -/- | |
| 階層 / 方位 | 3階/地上3階建 / 南 | 間取 / 面積 | 1K / 27.85m² | |
| 種別 / 構造 | アパート | 築年数 | 2021年01月 | |
| 特徴 | 敷金なし 駅徒歩5分 南向き バス・トイレ別 エアコン オートロック 保証人不要・代行 | |||
ただいま5人が検討中!
|
東京都板橋区前野町2丁目
東武鉄道東上線/ときわ台 徒歩10分
|
||||
| 賃料 | 9.0万円 | 敷金/礼金 | 無料 / 1ヶ月 | |
|---|---|---|---|---|
| 共益費 | 1.0万円 | 保証金/敷引 | -/- | |
| 階層 / 方位 | 3階/地上6階建 / 南 | 間取 / 面積 | 1K / 25.97m² | |
| 種別 / 構造 | マンション | 築年数 | 2020年04月 | |
| 特徴 | 敷金なし 南向き バス・トイレ別 エアコン オートロック 駐車場あり 保証人不要・代行 | |||
ただいま4人が検討中!
|
東京都板橋区上板橋3丁目
東武鉄道東上線/上板橋 徒歩5分
|
||||
| 賃料 | 9.3万円 | 敷金/礼金 | 無料 / 1ヶ月 | |
|---|---|---|---|---|
| 共益費 | 1.5万円 | 保証金/敷引 | -/- | |
| 階層 / 方位 | 4階/地上8階建 / 北西 | 間取 / 面積 | 1K / 26.43m² | |
| 種別 / 構造 | マンション | 築年数 | 2023年09月 | |
| 特徴 | 敷金なし 駅徒歩5分 バス・トイレ別 エアコン オートロック 保証人不要・代行 即入居可 ペット相談 | |||
ただいま1人が検討中!
|
東京都板橋区大和町
東京都三田線/板橋本町 徒歩8分
|
||||
| 賃料 | 9.3万円 | 敷金/礼金 | 1ヶ月 / 無料 | |
|---|---|---|---|---|
| 共益費 | 1.0万円 | 保証金/敷引 | -/- | |
| 階層 / 方位 | 1階/地上4階建 / 南 | 間取 / 面積 | 1K / 22.13m² | |
| 種別 / 構造 | マンション | 築年数 | 2024年06月 | |
| 特徴 | 礼金なし 南向き バス・トイレ別 エアコン オートロック 保証人不要・代行 | |||
ただいま1人が検討中!
|
東京都板橋区南常盤台1丁目
東武鉄道東上線/ときわ台 徒歩4分
|
||||
| 賃料 | 9.3万円 | 敷金/礼金 | 無料 / 1ヶ月 | |
|---|---|---|---|---|
| 共益費 | 5,000円 | 保証金/敷引 | -/- | |
| 階層 / 方位 | 1階/地上6階建 / 南東 | 間取 / 面積 | 1K / 25.63m² | |
| 種別 / 構造 | マンション | 築年数 | 2016年02月 | |
| 特徴 | 敷金なし 駅徒歩5分 南向き バス・トイレ別 エアコン オートロック 保証人不要・代行 ペット相談 | |||
ただいま3人が検討中!
|
東京都板橋区大和町
東京都三田線/板橋本町 徒歩3分
|
||||
| 賃料 | 9.5万円 | 敷金/礼金 | 1ヶ月 / 1ヶ月 | |
|---|---|---|---|---|
| 共益費 | 1.2万円 | 保証金/敷引 | -/- | |
| 階層 / 方位 | 5階/地上12階建 / 東 | 間取 / 面積 | 1K / 25.79m² | |
| 種別 / 構造 | マンション | 築年数 | 2019年06月 | |
| 特徴 | 駅徒歩5分 バス・トイレ別 エアコン オートロック 保証人不要・代行 | |||
ただいま2人が検討中!
|
東京都板橋区常盤台1丁目
東武鉄道東上線/ときわ台 徒歩2分
|
||||
| 賃料 | 9.2万円 | 敷金/礼金 | 無料 / 1ヶ月 | |
|---|---|---|---|---|
| 共益費 | 1.5万円 | 保証金/敷引 | -/- | |
| 階層 / 方位 | 9階/地上10階建 / 北西 | 間取 / 面積 | 1K / 26.1m² | |
| 種別 / 構造 | マンション | 築年数 | 2015年09月 | |
| 特徴 | 敷金なし 駅徒歩5分 バス・トイレ別 エアコン オートロック 保証人不要・代行 ペット相談 | |||
ただいま2人が検討中!
|
東京都板橋区中丸町
山手線/池袋 徒歩13分
|
||||
| 賃料 | 9.6万円 | 敷金/礼金 | 無料 / 0.5ヶ月 | |
|---|---|---|---|---|
| 共益費 | 1.5万円 | 保証金/敷引 | -/- | |
| 階層 / 方位 | 8階/地上14階建 / 南西 | 間取 / 面積 | 1K / 25.5m² | |
| 種別 / 構造 | マンション | 築年数 | 2020年08月 | |
| 特徴 | 敷金なし 南向き バス・トイレ別 エアコン オートロック 保証人不要・代行 | |||
ただいま1人が検討中!



