レジディアタワー上池袋(タワー棟)
POINT!2025年11月リノベーション済物件 東京の高級賃貸・ファミリー物件の仲介・管理・売買をお探しの方は、高級物件専門のプライムコーポレーションへ/海外転勤・国内転勤・入居審査・条件交渉等お任せ下さい/オンライン内見・オンライン契約対応可能
| 東京都豊島区上池袋1 
                          JR山手線/大塚駅 歩9分
                         | ||||
| 賃料 | 28.5万円 | 敷金/礼金 | 1ヶ月 / 1ヶ月 | |
|---|---|---|---|---|
| 共益費 | 1.5万円 | 保証金/敷引 | -/- | |
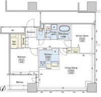
| 階層 / 方位 | 4階/地上22階建 / 北東 | 間取 / 面積 | 2LDK / 60.74m² | |
| 種別 / 構造 | マンション | 築年数 | 2009年05月 | |
| 特徴 | 角部屋 バス・トイレ別 オートロック 駐車場あり ペット相談 楽器相談 | |||
| 本物件について | こちらの物件は楽器相談物件のため、お家でも楽器を演奏したい!という方にぴったりです。キッチンには、システムキッチンがあります。セキュリティーとしては、オートロック、宅配ボックスがあります。部屋の設備としては、フローリング、バルコニー、エレベーターがあります。 | |||
POINT!ペット飼育、楽器相談可能 東京の高級賃貸・ファミリー物件の仲介・管理・売買をお探しの方は、高級物件専門のプライムコーポレーションへ/海外転勤・国内転勤・入居審査・条件交渉等お任せ下さい/オンライン内見・オンライン契約対応可能
| 東京都豊島区上池袋1 JR山手線/大塚駅 歩9分 | ||||
| 賃料 | 36.0万円 | 敷金/礼金 | 1ヶ月 / 無料 | |
|---|---|---|---|---|
| 共益費 | 1.5万円 | 保証金/敷引 | -/- | |
| 階層 / 方位 | 7階/地上22階建 / 北東 | 間取 / 面積 | 3LDK / 80.33m² | |
| 種別 / 構造 | マンション | 築年数 | 2009年05月 | |
| 特徴 | 礼金なし 角部屋 バス・トイレ別 エアコン オートロック ペット相談 楽器相談 | |||
レジディアタワー上池袋(タワー棟)
POINT!ペット・楽器相談可能 収納豊富な2LDK 東京の高級賃貸・ファミリー物件の仲介・管理・売買をお探しの方は、高級物件専門のプライムコーポレーションへ/海外転勤・国内転勤・入居審査・条件交渉等お任せ下さい/オンライン内見・オンライン契約対応可能
| 東京都豊島区上池袋1 JR山手線/大塚駅 歩9分 | ||||
| 賃料 | 28.9万円 | 敷金/礼金 | 1ヶ月 / 1ヶ月 | |
|---|---|---|---|---|
| 共益費 | 1.5万円 | 保証金/敷引 | -/- | |
| 階層 / 方位 | 7階/地上22階建 / 南東 | 間取 / 面積 | 2LDK / 68.26m² | |
| 種別 / 構造 | マンション | 築年数 | 2009年05月 | |
| 特徴 | 南向き バス・トイレ別 エアコン オートロック ペット相談 楽器相談 | |||
レジディアタワー上池袋(タワー棟)
POINT!ペット相談 リノベーション住戸 WIC付き 申し込み受付中 東京の高級賃貸・ファミリー物件の仲介・管理・売買をお探しの方は、高級物件専門のプライムコーポレーションへ/海外転勤・国内転勤・入居審査・条件交渉等お任せ下さい/オンライン内見・オンライン契約対応可能。
| 東京都豊島区上池袋1 JR山手線/大塚駅 歩9分 | ||||
| 賃料 | 27.8万円 | 敷金/礼金 | 1ヶ月 / 無料 | |
|---|---|---|---|---|
| 共益費 | 1.5万円 | 保証金/敷引 | -/- | |
| 階層 / 方位 | 3階/地上22階建 / 南東 | 間取 / 面積 | 1SLDK ※Sは納戸となります。 / 65.76m² | |
| 種別 / 構造 | マンション | 築年数 | 2009年05月 | |
| 特徴 | 礼金なし 南向き バス・トイレ別 エアコン オートロック 駐車場あり 即入居可 ペット相談 | |||
レジディアタワー上池袋(タワー棟)
POINT!ペット飼育、楽器相談可能 フロントサービスあり 東京の高級賃貸・ファミリー物件の仲介・管理・売買をお探しの方は、高級物件専門のプライムコーポレーションへ/海外転勤・国内転勤・入居審査・条件交渉等お任せ下さい/オンライン内見・オンライン契約対応可能
| 東京都豊島区上池袋1 JR山手線/大塚駅 歩9分 | ||||
| 賃料 | 23.7万円 | 敷金/礼金 | 1ヶ月 / 1ヶ月 | |
|---|---|---|---|---|
| 共益費 | 1.5万円 | 保証金/敷引 | -/- | |
| 階層 / 方位 | 11階/地上22階建 / 北東 | 間取 / 面積 | 1LDK / 57.3m² | |
| 種別 / 構造 | マンション | 築年数 | 2009年05月 | |
| 特徴 | バス・トイレ別 エアコン オートロック ペット相談 楽器相談 | |||
POINT!ペット飼育、楽器相談可能 東京の高級賃貸・ファミリー物件の仲介・管理・売買をお探しの方は、高級物件専門のプライムコーポレーションへ/海外転勤・国内転勤・入居審査・条件交渉等お任せ下さい/オンライン内見・オンライン契約対応可能
| 東京都豊島区上池袋1 JR山手線/大塚駅 歩9分 | ||||
| 賃料 | 22.5万円 | 敷金/礼金 | 1ヶ月 / 無料 | |
|---|---|---|---|---|
| 共益費 | 1.5万円 | 保証金/敷引 | -/- | |
| 階層 / 方位 | 2階/地上22階建 / 北東 | 間取 / 面積 | 2LDK / 54.2m² | |
| 種別 / 構造 | マンション | 築年数 | 2009年05月 | |
| 特徴 | 礼金なし バス・トイレ別 エアコン オートロック ペット相談 楽器相談 | |||
レジディアタワー上池袋(タワー棟)
POINT!ペット飼育・楽器相談可能 WIC付き1LDK 東京の高級賃貸・ファミリー物件の仲介・管理・売買をお探しの方は、高級物件専門のプライムコーポレーションへ/海外転勤・国内転勤・入居審査・条件交渉等お任せ下さい/オンライン内見・オンライン契約対応可能
| 東京都豊島区上池袋1 JR山手線/大塚駅 歩9分 | ||||
| 賃料 | 19.0万円 | 敷金/礼金 | 1ヶ月 / 1ヶ月 | |
|---|---|---|---|---|
| 共益費 | 1.5万円 | 保証金/敷引 | -/- | |
| 階層 / 方位 | 7階/地上22階建 / 北東 | 間取 / 面積 | 1LDK / 40.92m² | |
| 種別 / 構造 | マンション | 築年数 | 2009年05月 | |
| 特徴 | バス・トイレ別 エアコン オートロック ペット相談 楽器相談 | |||
レジディアタワー上池袋(タワー棟)
POINT!ペット・楽器相談可能 収納豊富な1LDK 東京の高級賃貸・ファミリー物件の仲介・管理・売買をお探しの方は、高級物件専門のプライムコーポレーションへ/海外転勤・国内転勤・入居審査・条件交渉等お任せ下さい/オンライン内見・オンライン契約対応可能
| 東京都豊島区上池袋1 JR山手線/大塚駅 歩9分 | ||||
| 賃料 | 17.4万円 | 敷金/礼金 | 1ヶ月 / 1ヶ月 | |
|---|---|---|---|---|
| 共益費 | 1.5万円 | 保証金/敷引 | -/- | |
| 階層 / 方位 | 6階/地上22階建 / 北東 | 間取 / 面積 | 1LDK / 40.16m² | |
| 種別 / 構造 | マンション | 築年数 | 2009年05月 | |
| 特徴 | バス・トイレ別 オートロック 駐車場あり ペット相談 楽器相談 | |||
エリア・賃料・間取り・駅徒歩が近いおすすめ物件一覧
         東京都豊島区 | 山手線・東武東上線 | 285,000円前後 | 駅徒歩14分以内 | 2DK〜2SLDK
         のおすすめ物件だぶ!
        
 
      | 東京都豊島区上池袋1丁目 山手線/大塚 徒歩10分 | ||||
| 賃料 | 28.9万円 | 敷金/礼金 | 1ヶ月 / 1ヶ月 | |
|---|---|---|---|---|
| 共益費 | 1.5万円 | 保証金/敷引 | -/- | |
| 階層 / 方位 | 7階/地上22階建 / 南東 | 間取 / 面積 | 2LDK / 68.26m² | |
| 種別 / 構造 | マンション | 築年数 | 2009年05月 | |
| 特徴 | 南向き バス・トイレ別 エアコン オートロック 駐車場あり ペット相談 楽器相談 | |||
ただいま1人が検討中!
| 東京都豊島区上池袋1丁目 山手線/大塚 徒歩10分 | ||||
| 賃料 | 28.5万円 | 敷金/礼金 | 1ヶ月 / 1ヶ月 | |
|---|---|---|---|---|
| 共益費 | 1.5万円 | 保証金/敷引 | -/- | |
| 階層 / 方位 | 4階/地上22階建 / 北東 | 間取 / 面積 | 2LDK / 60.74m² | |
| 種別 / 構造 | マンション | 築年数 | 2009年05月 | |
| 特徴 | バス・トイレ別 エアコン オートロック 駐車場あり ペット相談 楽器相談 | |||
| 東京都豊島区上池袋1丁目 山手線/大塚 徒歩10分 | ||||
| 賃料 | 28.9万円 | 敷金/礼金 | 1ヶ月 / 1ヶ月 | |
|---|---|---|---|---|
| 共益費 | 1.5万円 | 保証金/敷引 | -/- | |
| 階層 / 方位 | 7階/地上22階建 / 南東 | 間取 / 面積 | 2LDK / 68.26m² | |
| 種別 / 構造 | マンション | 築年数 | 2009年05月 | |
| 特徴 | 南向き バス・トイレ別 エアコン オートロック 駐車場あり ペット相談 楽器相談 | |||
| 東京都豊島区南大塚3丁目43-5 山手線/大塚 徒歩4分 | ||||
| 賃料 | 28.1万円 | 敷金/礼金 | 1ヶ月 / 無料 | |
|---|---|---|---|---|
| 共益費 | 8,000円 | 保証金/敷引 | -/- | |
| 階層 / 方位 | 5階/地上10階建 / 西 | 間取 / 面積 | 2LDK / 64.28m² | |
| 種別 / 構造 | マンション | 築年数 | 1989年03月 | |
| 特徴 | 礼金なし 駅徒歩5分 角部屋 バス・トイレ別 エアコン オートロック 駐車場あり | |||
ただいま1人が検討中!
| 東京都豊島区南大塚2丁目2-19 東京地下鉄丸ノ内線/新大塚 徒歩6分 | ||||
| 賃料 | 28.0万円 | 敷金/礼金 | 1ヶ月 / 無料 | |
|---|---|---|---|---|
| 共益費 | 1.5万円 | 保証金/敷引 | -/- | |
| 階層 / 方位 | 3階/地上8階建 / 北東 | 間取 / 面積 | 2LDK / 53.4m² | |
| 種別 / 構造 | マンション | 築年数 | 新築(2025年02月) | |
| 特徴 | 礼金なし 新築 角部屋 バス・トイレ別 エアコン オートロック 保証人不要・代行 即入居可 | |||
ただいま1人が検討中!
| 東京都豊島区高田2丁目7-2 東京地下鉄副都心線/雑司が谷 徒歩7分 | ||||
| 賃料 | 28.5万円 | 敷金/礼金 | 1ヶ月 / 無料 | |
|---|---|---|---|---|
| 共益費 | 1.5万円 | 保証金/敷引 | -/- | |
| 階層 / 方位 | 5階/地上10階建 / 南 | 間取 / 面積 | 2LDK / 80.44m² | |
| 種別 / 構造 | マンション | 築年数 | 1999年02月 | |
| 特徴 | 礼金なし 南向き バス・トイレ別 エアコン オートロック 保証人不要・代行 | |||
ただいま3人が検討中!
| 東京都豊島区駒込4丁目8-16 山手線/巣鴨 徒歩2分 | ||||
| 賃料 | 28.7万円 | 敷金/礼金 | 2ヶ月 / 1ヶ月 | |
|---|---|---|---|---|
| 共益費 | 8,000円 | 保証金/敷引 | -/- | |
| 階層 / 方位 | 3階/地上6階建 / 東 | 間取 / 面積 | 2LDK / 61.62m² | |
| 種別 / 構造 | マンション | 築年数 | 2007年11月 | |
| 特徴 | 駅徒歩5分 バス・トイレ別 オートロック 保証人不要・代行 即入居可 ペット相談 | |||
| 東京都豊島区南大塚3丁目43-5 山手線/大塚 徒歩4分 | ||||
| 賃料 | 28.1万円 | 敷金/礼金 | 1ヶ月 / 無料 | |
|---|---|---|---|---|
| 共益費 | 8,000円 | 保証金/敷引 | -/- | |
| 階層 / 方位 | 5階/地上10階建 / 西 | 間取 / 面積 | 2LDK / 64.28m² | |
| 種別 / 構造 | マンション | 築年数 | 1989年03月 | |
| 特徴 | 礼金なし 駅徒歩5分 角部屋 バス・トイレ別 エアコン オートロック 駐車場あり 保証人不要・代行 即入居可 | |||
ただいま1人が検討中!
| 東京都豊島区南大塚2丁目2-19 東京地下鉄丸ノ内線/新大塚 徒歩6分 | ||||
| 賃料 | 27.7万円 | 敷金/礼金 | 1ヶ月 / 無料 | |
|---|---|---|---|---|
| 共益費 | 1.5万円 | 保証金/敷引 | -/- | |
| 階層 / 方位 | 2階/地上8階建 / 北東 | 間取 / 面積 | 2SDK ※Sは納戸となります。 / 51.0m² | |
| 種別 / 構造 | マンション | 築年数 | 新築(2025年02月) | |
| 特徴 | 礼金なし 新築 バス・トイレ別 エアコン オートロック 即入居可 | |||
ただいま1人が検討中!
| 東京都豊島区南大塚3-43-5 山手線/大塚 徒歩4分 | ||||
| 賃料 | 28.1万円 | 敷金/礼金 | 1ヶ月 / 無料 | |
|---|---|---|---|---|
| 共益費 | 8,000円 | 保証金/敷引 | -/- | |
| 階層 / 方位 | 5階/地上10階建 / 西 | 間取 / 面積 | 2LDK / 64.28m² | |
| 種別 / 構造 | マンション | 築年数 | 1989年03月 | |
| 特徴 | 礼金なし 駅徒歩5分 角部屋 バス・トイレ別 エアコン オートロック 駐車場あり 保証人不要・代行 即入居可 | |||
ただいま1人が検討中!
| 東京都豊島区南大塚2丁目2-19 東京地下鉄丸ノ内線/新大塚 徒歩6分 | ||||
| 賃料 | 28.2万円 | 敷金/礼金 | 1ヶ月 / 無料 | |
|---|---|---|---|---|
| 共益費 | 1.5万円 | 保証金/敷引 | -/- | |
| 階層 / 方位 | 5階/地上8階建 / 北東 | 間取 / 面積 | 2LDK / 53.4m² | |
| 種別 / 構造 | マンション | 築年数 | 築1年以内(2025年02月) | |
| 特徴 | 礼金なし 角部屋 バス・トイレ別 エアコン オートロック 保証人不要・代行 即入居可 | |||
ただいま2人が検討中!
| 東京都豊島区南大塚3丁目 山手線/大塚 徒歩4分 | ||||
| 賃料 | 28.1万円 | 敷金/礼金 | 1ヶ月 / 無料 | |
|---|---|---|---|---|
| 共益費 | 8,000円 | 保証金/敷引 | -/- | |
| 階層 / 方位 | 5階/地上10階建 / 西 | 間取 / 面積 | 2LDK / 64.28m² | |
| 種別 / 構造 | マンション | 築年数 | 1989年03月 | |
| 特徴 | 礼金なし 駅徒歩5分 バス・トイレ別 エアコン オートロック 駐車場あり 保証人不要・代行 | |||
ただいま2人が検討中!


 
 
 
 
 
 
 
 
 
 
 
 

 
 
 
 
 

