RIHO深江
POINT!収納はシューズボックス・クロゼットなどが備え付けられているので、衣類や日用品の収納に重宝します。化粧品やスタイリング剤などをまとめて出し入れして、サッと身支度を整えられる洗面化粧台があります。お家の中でパソコンを快適に使える光回線を導入しています。入居が2025年9月予定の方、こちらの物件をご検討下さい。実際に見てみないことにはお部屋選びはできません。すぐに内覧もできる空き部屋です。コンロや作業台が一体化しているので段差がなく、掃除がとても楽になるシステムキッチンがあります。CATVは充実のチャンネルが魅力の、夜更かし注意の楽しすぎるコンテンツです。IH調理器でお料理をすることができます。風通しが良好なお部屋でさわやかな新生活を始めませんか。
|
兵庫県神戸市東灘区深江本町3丁目
東海道本線/甲南山手 徒歩15分
|
||||
| 賃料 | 9.1万円 | 敷金/礼金 | 無料 / 2ヶ月 | |
|---|---|---|---|---|
| 共益費 | 8,000円 | 保証金/敷引 | -/- | |
| 階層 / 方位 | 7階/地上7階建 / - | 間取 / 面積 | 1DK / 41.0m² | |
| 種別 / 構造 | マンション | 築年数 | 1989年01月 | |
| 特徴 | 敷金なし 駅徒歩5分 バス・トイレ別 エアコン 駐車場あり 即入居可 | |||
| 本物件について |
こちらの物件は東海道本線の甲南山手駅より徒歩で15分の場所にあるマンションです。また、2階以上、最上階の物件です。即入居可物件のため、お急ぎでお家探しをしている方はぜひお問い合わせください!キッチンには、システムキッチンがあります。部屋の設備としては、バス・トイレ別、独立洗面台、温水洗浄便座があります。エアコンが既に設置されているため、初期費用を抑えることが出来ます。そしてインターネット対応しています。部屋の設備としては、フローリング、室内洗濯機置場、バルコニー、エレベーター、駐車場ありがあります。 |
|||
ただいま1人が検討中!
RIHO深江
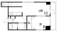
POINT!収納はクロゼット・シューズボックスなど豊富なので、広々と空間を利用することも可能です。顔が見える安心のTVインターホン付きです。共用部にはエレベータ・オール電化など様々な設備やサービスが揃っているので便利です。室内設備は洗面所独立・浴室乾燥機など豊富に揃っており、過ごしやすいお部屋になっております。実際に部屋を確認して納得の新居選びを。空き部屋であれば入居までスムーズです。間取り1LDKの物件で安らぎの空間のあるお住まいです。閑静な住宅地にあるマンションです。新しい日々を送るにふさわしい、きれいな室内です。陽が当たるマンションは湿気も少なく健康な毎日を過ごせます。インターネットの回線が繋がっているので快適なお住まい。この物件はバルコニー付きで、用途に合わせて活用できます。
|
兵庫県神戸市東灘区深江本町3丁目
阪神電鉄本線/深江 徒歩1分
|
||||
| 賃料 | 9.0万円 | 敷金/礼金 | 無料 / 2ヶ月 | |
|---|---|---|---|---|
| 共益費 | 8,000円 | 保証金/敷引 | -/- | |
| 階層 / 方位 | 5階/地上7階建 / 西 | 間取 / 面積 | 1LDK / 41.0m² | |
| 種別 / 構造 | マンション | 築年数 | 1989年01月 | |
| 特徴 | 敷金なし 駅徒歩5分 バス・トイレ別 エアコン オール電化 即入居可 | |||
RIHO深江[7号室]
POINT!室内設備は洗面所独立・浴室乾燥機など大変充実しております。共用部にはエレベータ・オール電化などが揃っており、とても充実しています。モニターで来訪者を確認して、インターホンを通じて室内から会話することができます。フローリング仕様のマンションです。CATV対応なので、契約のみで様々なチャンネルが閲覧できます。IHは調理器具と密着しているため熱が空気に伝わりずらく、キッチン周辺が暑くなるのを防げます。41平米程の専有面積でスペースも十分。共用設備の充実している、楽しく生活できるマンションです。インターネット付きの物件です。暑い夏も寒い冬も、このエアコン付き物件なら安心です。
|
兵庫県神戸市東灘区深江本町3丁目
阪神電鉄本線/深江 徒歩1分
|
||||
| 賃料 | 9.1万円 | 敷金/礼金 | 無料 / 2ヶ月 | |
|---|---|---|---|---|
| 共益費 | 8,000円 | 保証金/敷引 | -/- | |
| 階層 / 方位 | 7階/地上7階建 / 西 | 間取 / 面積 | 1LDK / 41.0m² | |
| 種別 / 構造 | マンション | 築年数 | 1989年01月 | |
| 特徴 | 敷金なし 駅徒歩5分 バス・トイレ別 エアコン オール電化 即入居可 | |||
RIHO深江
POINT!駅まで徒歩1分の好立地!ゆったりとした1LDKです☆
|
兵庫県神戸市東灘区深江南町3丁目
阪神電鉄本線/深江 徒歩1分
|
||||
| 賃料 | 9.0万円 | 敷金/礼金 | 無料 / 2ヶ月 | |
|---|---|---|---|---|
| 共益費 | 8,000円 | 保証金/敷引 | -/- | |
| 階層 / 方位 | 7階/地上7階建 / 南 | 間取 / 面積 | 1LDK / 41.0m² | |
| 種別 / 構造 | マンション | 築年数 | 1989年01月 | |
| 特徴 | 敷金なし 駅徒歩5分 南向き バス・トイレ別 エアコン オートロック 駐車場あり 保証人不要・代行 | |||
RIHO深江
POINT!フルリノベーションのお部屋!駅まで1分です♪
|
兵庫県神戸市東灘区深江本町3丁目
阪神電鉄本線/深江 徒歩1分
|
||||
| 賃料 | 9.1万円 | 敷金/礼金 | 無料 / 2ヶ月 | |
|---|---|---|---|---|
| 共益費 | 8,000円 | 保証金/敷引 | -/- | |
| 階層 / 方位 | 7階/地上7階建 / 西 | 間取 / 面積 | 1LDK / 40.0m² | |
| 種別 / 構造 | マンション | 築年数 | 1989年01月 | |
| 特徴 | 敷金なし 駅徒歩5分 バス・トイレ別 駐車場あり 即入居可 | |||
RIHO深江
POINT!駅まで徒歩1分の好立地!ゆったりとした1LDKです☆
|
兵庫県神戸市東灘区深江南町3丁目
阪神電鉄本線/深江 徒歩1分
|
||||
| 賃料 | 9.1万円 | 敷金/礼金 | 無料 / 2ヶ月 | |
|---|---|---|---|---|
| 共益費 | 8,000円 | 保証金/敷引 | -/- | |
| 階層 / 方位 | 7階/地上7階建 / 南 | 間取 / 面積 | 1LDK / 41.0m² | |
| 種別 / 構造 | マンション | 築年数 | 1989年01月 | |
| 特徴 | 敷金なし 駅徒歩5分 南向き バス・トイレ別 エアコン オートロック 駐車場あり 保証人不要・代行 | |||
RIHO深江
POINT!インターホン越しに来訪者を確認できるので、トラブルを事前に回避しやすくなります。洗面化粧台が付いているので、歯ブラシやドライヤーなどをまとめて収納できます。何品も作る場合でも同時に料理を進められる、3口コンロが付いている物件です。こちらの物件は閑静な住宅地にあります。光回線を繋げていますので通信が早く快適にパソコンが使えます。駅から徒歩14分のところにある物件はいかがでしょうか。エレベーター付きの物件です。使い勝手の良い、1DKの間取り。こちらはマンションタイプになります。
|
兵庫県神戸市東灘区深江本町3丁目
東海道本線/甲南山手 徒歩14分
|
||||
| 賃料 | 9.0万円 | 敷金/礼金 | 無料 / 2ヶ月 | |
|---|---|---|---|---|
| 共益費 | 8,000円 | 保証金/敷引 | -/- | |
| 階層 / 方位 | 5階/地上7階建 / 西 | 間取 / 面積 | 1DK / 41.0m² | |
| 種別 / 構造 | マンション | 築年数 | 1989年01月 | |
| 特徴 | 敷金なし 駅徒歩5分 バス・トイレ別 エアコン 駐車場あり | |||
RIHO深江
POINT!フルリノベーションのお部屋!駅まで1分です♪
|
兵庫県神戸市東灘区深江本町3丁目
阪神電鉄本線/深江 徒歩1分
|
||||
| 賃料 | 9.0万円 | 敷金/礼金 | 無料 / 2ヶ月 | |
|---|---|---|---|---|
| 共益費 | 8,000円 | 保証金/敷引 | -/- | |
| 階層 / 方位 | 5階/地上7階建 / 西 | 間取 / 面積 | 1LDK / 41.0m² | |
| 種別 / 構造 | マンション | 築年数 | 1989年01月 | |
| 特徴 | 敷金なし 駅徒歩5分 角部屋 バス・トイレ別 エアコン 駐車場あり 即入居可 | |||
エリア・賃料・間取り・駅徒歩が近いおすすめ物件一覧
兵庫県神戸市東灘区 | 阪神本線 | 91,000円前後 | 駅徒歩6分以内 | 1K〜1LDK
のおすすめ物件だぶ!
|
兵庫県神戸市東灘区本山北町2丁目
東海道本線/摂津本山 徒歩10分
|
||||
| 賃料 | 9.0万円 | 敷金/礼金 | 1ヶ月 / 2ヶ月 | |
|---|---|---|---|---|
| 共益費 | 5,000円 | 保証金/敷引 | -/- | |
| 階層 / 方位 | -/地上2階建 / 南 | 間取 / 面積 | 1LDK / 48.12m² | |
| 種別 / 構造 | アパート | 築年数 | 2014年03月 | |
| 特徴 | 南向き バス・トイレ別 エアコン 即入居可 | |||
ただいま3人が検討中!
|
兵庫県神戸市東灘区御影郡家1丁目
阪急電鉄神戸線/御影 徒歩6分
|
||||
| 賃料 | 8.8万円 | 敷金/礼金 | 1ヶ月 / 2ヶ月 | |
|---|---|---|---|---|
| 共益費 | 3,500円 | 保証金/敷引 | -/- | |
| 階層 / 方位 | 5階/地上5階建 / 西 | 間取 / 面積 | 1LDK / 43.45m² | |
| 種別 / 構造 | マンション | 築年数 | 1987年03月 | |
| 特徴 | バス・トイレ別 エアコン オートロック 駐車場あり 即入居可 | |||
ただいま1人が検討中!
|
兵庫県神戸市東灘区住吉宮町1丁目
阪神電鉄本線/住吉 徒歩2分
|
||||
| 賃料 | 8.5万円 | 敷金/礼金 | 無料 / 1ヶ月 | |
|---|---|---|---|---|
| 共益費 | 4,000円 | 保証金/敷引 | -/- | |
| 階層 / 方位 | 3階/地上3階建 / - | 間取 / 面積 | 1LDK / 30.38m² | |
| 種別 / 構造 | アパート | 築年数 | 建築中(2026年03月) | |
| 特徴 | 敷金なし 駅徒歩5分 バス・トイレ別 エアコン オートロック | |||
ただいま3人が検討中!
|
兵庫県神戸市東灘区住吉宮町1丁目
阪神電鉄本線/住吉 徒歩2分
|
||||
| 賃料 | 8.4万円 | 敷金/礼金 | 無料 / 1ヶ月 | |
|---|---|---|---|---|
| 共益費 | 4,000円 | 保証金/敷引 | -/- | |
| 階層 / 方位 | 3階/地上3階建 / - | 間取 / 面積 | 1LDK / 30.28m² | |
| 種別 / 構造 | アパート | 築年数 | 建築中(2026年03月) | |
| 特徴 | 敷金なし 駅徒歩5分 バス・トイレ別 エアコン オートロック | |||
ただいま1人が検討中!
|
兵庫県神戸市東灘区向洋町中1丁目
六甲アイランド線/アイランドセンター 徒歩5分
|
||||
| 賃料 | 9.5万円 | 敷金/礼金 | 1ヶ月 / 無料 | |
|---|---|---|---|---|
| 共益費 | 1.0万円 | 保証金/敷引 | -/- | |
| 階層 / 方位 | 10階/地上14階建 / 東 | 間取 / 面積 | 1LDK / 53.86m² | |
| 種別 / 構造 | マンション | 築年数 | 1991年04月 | |
| 特徴 | 礼金なし 駅徒歩5分 バス・トイレ別 エアコン オートロック 駐車場あり | |||
ただいま3人が検討中!
|
兵庫県神戸市東灘区森南町1丁目
東海道本線/甲南山手 徒歩4分
|
||||
| 賃料 | 9.6万円 | 敷金/礼金 | 1ヶ月 / 2ヶ月 | |
|---|---|---|---|---|
| 共益費 | 3,000円 | 保証金/敷引 | -/- | |
| 階層 / 方位 | 2階/地上4階建 / 南 | 間取 / 面積 | 1LDK / 45.68m² | |
| 種別 / 構造 | マンション | 築年数 | 1991年07月 | |
| 特徴 | 駅徒歩5分 南向き バス・トイレ別 エアコン オートロック 即入居可 | |||
ただいま10人以上が検討中!
|
兵庫県神戸市東灘区魚崎中町1丁目
阪神電鉄本線/青木 徒歩9分
|
||||
| 賃料 | 9.0万円 | 敷金/礼金 | 無料 / 無料 | |
|---|---|---|---|---|
| 共益費 | - | 保証金/敷引 | -/- | |
| 階層 / 方位 | 3階/地上5階建 / 南 | 間取 / 面積 | 1LDK / 41.6m² | |
| 種別 / 構造 | マンション | 築年数 | 1997年04月 | |
| 特徴 | 礼金なし 敷金なし 南向き バス・トイレ別 エアコン オートロック 即入居可 | |||
ただいま4人が検討中!
|
兵庫県神戸市東灘区魚崎中町1丁目
阪神電鉄本線/青木 徒歩9分
|
||||
| 賃料 | 9.0万円 | 敷金/礼金 | 無料 / 無料 | |
|---|---|---|---|---|
| 共益費 | - | 保証金/敷引 | -/- | |
| 階層 / 方位 | 4階/地上5階建 / 北 | 間取 / 面積 | 1LDK / 45.0m² | |
| 種別 / 構造 | マンション | 築年数 | 1997年04月 | |
| 特徴 | 礼金なし 敷金なし バス・トイレ別 エアコン オートロック 即入居可 | |||
ただいま2人が検討中!
|
兵庫県神戸市東灘区田中町1丁目
東海道本線/摂津本山 徒歩5分
|
||||
| 賃料 | 9.5万円 | 敷金/礼金 | 10.0万円 / 30.0万円 | |
|---|---|---|---|---|
| 共益費 | - | 保証金/敷引 | -/- | |
| 階層 / 方位 | 2階/地上4階建 / 東 | 間取 / 面積 | 1DK / 47.13m² | |
| 種別 / 構造 | マンション | 築年数 | 1984年05月 | |
| 特徴 | 駅徒歩5分 バス・トイレ別 即入居可 | |||
ただいま1人が検討中!
|
兵庫県神戸市東灘区住吉東町4丁目
東海道本線/住吉 徒歩6分
|
||||
| 賃料 | 9.5万円 | 敷金/礼金 | 10.0万円 / 20.0万円 | |
|---|---|---|---|---|
| 共益費 | - | 保証金/敷引 | -/- | |
| 階層 / 方位 | 3階/地上3階建 / 西 | 間取 / 面積 | 1LDK / 42.88m² | |
| 種別 / 構造 | マンション | 築年数 | 1979年04月 | |
| 特徴 | バス・トイレ別 | |||
|
兵庫県神戸市東灘区住吉宮町1丁目
阪神電鉄本線/住吉 徒歩2分
|
||||
| 賃料 | 8.3万円 | 敷金/礼金 | 無料 / 1ヶ月 | |
|---|---|---|---|---|
| 共益費 | 4,000円 | 保証金/敷引 | -/- | |
| 階層 / 方位 | 2階/地上3階建 / - | 間取 / 面積 | 1LDK / 30.28m² | |
| 種別 / 構造 | アパート | 築年数 | 建築中(2026年03月) | |
| 特徴 | 敷金なし 駅徒歩5分 バス・トイレ別 エアコン オートロック | |||
ただいま2人が検討中!
|
兵庫県神戸市東灘区住吉宮町1丁目
阪神電鉄本線/住吉 徒歩2分
|
||||
| 賃料 | 8.4万円 | 敷金/礼金 | 無料 / 1ヶ月 | |
|---|---|---|---|---|
| 共益費 | 4,000円 | 保証金/敷引 | -/- | |
| 階層 / 方位 | 2階/地上3階建 / - | 間取 / 面積 | 1LDK / 30.38m² | |
| 種別 / 構造 | アパート | 築年数 | 建築中(2026年03月) | |
| 特徴 | 敷金なし 駅徒歩5分 バス・トイレ別 エアコン オートロック | |||
ただいま2人が検討中!



