お探しの物件はこちらですか?
[NEW]
THE GRANDUO CHITOFUNA
POINT!■新築■南向き■専用庭■床暖房■食器洗浄機■クローゼット 小田急線千歳船橋駅徒歩9分。閑静な住宅街に立地。建物の南北にに部屋を配置し、開口を大きくとることで、開放的な空間としています。ペット飼育相談可能。シャッター付き平置駐車場付属。
|
東京都世田谷区桜丘4
小田急線/千歳船橋駅 歩9分
|
||||
| 賃料 | 46.0万円 | 敷金/礼金 | 無料 / 無料 | |
|---|---|---|---|---|
| 共益費 | - | 保証金/敷引 | -/- | |
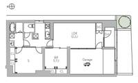
| 階層 / 方位 | 1階/地下1地上3階建 / 南 | 間取 / 面積 | 1SLDK ※Sは納戸となります。 / 90.99m² | |
| 種別 / 構造 | マンション | 築年数 | 新築(2025年03月) | |
| 特徴 | 礼金なし 敷金なし 新築 南向き バス・トイレ別 エアコン オートロック 駐車場あり 即入居可 ペット相談 | |||
| 本物件について |
こちらの物件は部屋の設備としては、浴室乾燥機、温水洗浄便座があります。そして室内には、エアコン、床暖房があります。セキュリティーとしては、オートロック、宅配ボックスがあります。エレベーター付き物件のため、重い荷物の持ち運びにはとても便利です。 |
|||
ただいま1人が検討中!
エリア・賃料・間取り・駅徒歩が近いおすすめ物件一覧
東京都目黒区 | 小田急線・小田急線・田園都市線 | 460,000円前後 | 駅徒歩14分以内 | 1DK〜2DK
のおすすめ物件だぶ!
|
東京都世田谷区桜丘4
小田急線/千歳船橋駅 歩9分
|
||||
| 賃料 | 46.0万円 | 敷金/礼金 | 無料 / 無料 | |
|---|---|---|---|---|
| 共益費 | - | 保証金/敷引 | -/- | |
| 階層 / 方位 | 1階/地上3階建 / 南 | 間取 / 面積 | 1SLDK ※Sは納戸となります。 / 90.99m² | |
| 種別 / 構造 | マンション | 築年数 | 新築(2025年03月) | |
| 特徴 | 礼金なし 敷金なし 新築 角部屋 南向き バス・トイレ別 エアコン オートロック 保証人不要・代行 即入居可 ペット相談 | |||
|
東京都目黒区上目黒3
東急東横線/中目黒駅 歩5分
|
||||
| 賃料 | 45.0万円 | 敷金/礼金 | 3ヶ月 / 無料 | |
|---|---|---|---|---|
| 共益費 | - | 保証金/敷引 | -/- | |
| 階層 / 方位 | 1-2階/地下1地上3階建 / 南東 | 間取 / 面積 | 1LDK / 70.99m² | |
| 種別 / 構造 | マンション | 築年数 | 2019年02月 | |
| 特徴 | 礼金なし 駅徒歩5分 南向き バス・トイレ別 エアコン オートロック 保証人不要・代行 即入居可 ペット相談 | |||
ただいま2人が検討中!
|
東京都目黒区上目黒3
東京メトロ日比谷線/中目黒駅 歩5分
|
||||
| 賃料 | 45.0万円 | 敷金/礼金 | 3ヶ月 / 無料 | |
|---|---|---|---|---|
| 共益費 | - | 保証金/敷引 | -/- | |
| 階層 / 方位 | 2階/地下1地上3階建 / 南東 | 間取 / 面積 | 1LDK / 70.99m² | |
| 種別 / 構造 | マンション | 築年数 | 2019年02月 | |
| 特徴 | 礼金なし 駅徒歩5分 南向き バス・トイレ別 エアコン オートロック 駐車場あり 保証人不要・代行 即入居可 ペット相談 | |||
ただいま3人が検討中!
|
東京都渋谷区宇田川町
JR山手線/渋谷駅 歩9分
|
||||
| 賃料 | 45.0万円 | 敷金/礼金 | 2ヶ月 / 1ヶ月 | |
|---|---|---|---|---|
| 共益費 | - | 保証金/敷引 | -/- | |
| 階層 / 方位 | 28階/地下4地上39階建 / 西 | 間取 / 面積 | 1LDK / 49.3m² | |
| 種別 / 構造 | マンション | 築年数 | 2020年07月 | |
| 特徴 | バス・トイレ別 エアコン オートロック 楽器相談 | |||
ただいま3人が検討中!


