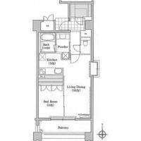
プライムメゾン東桜
POINT!!!仲介手数料0円!!仲介手数料0円!! 共用部には宅配ボックスを設置しているため、対面で荷物を受け取る必要がなくなります。オートロックと玄関の鍵で二重にロックできるのでより安全に暮らせます。室内設備は浴室乾燥機・洗面所独立などが揃っており、とても充実しています。パソコンでもスマホでもタブレットでも、通信料金を気にすることなく好きな端末で好きな時間にインターネットをご利用いただけます。専有面積46.8平米もある広々とした住まい。今なら駐車場に空きあり、お車をお持ちの方に。新しい日々を送るにふさわしい、きれいな室内です。2口コンロが付いているので、短い時間で一気に作り置きもできて効率的です。システムキッチンはシンクやコンロ、作業台などが一体化しているので、掃除がしやすい構造になっています。この物件はお風呂に追い焚き機能が付いています。
|
愛知県名古屋市東区東桜2丁目
名古屋市桜通線/高岳 徒歩5分
|
||||
| 賃料 | 12.2万円 | 敷金/礼金 | 1ヶ月 / 1ヶ月 | |
|---|---|---|---|---|
| 共益費 | 1.0万円 | 保証金/敷引 | -/- | |
| 階層 / 方位 | 7階/地上14階建 / 南 | 間取 / 面積 | 1LDK / 46.8m² | |
| 種別 / 構造 | マンション | 築年数 | 2008年03月 | |
| 特徴 | 駅徒歩5分 南向き バス・トイレ別 エアコン オートロック 駐車場あり 保証人不要・代行 ペット相談 | |||
| 本物件について |
こちらの物件は名古屋市桜通線の高岳駅より徒歩で5分の場所にあるマンションです。また、2階以上、南向きの物件です。保証人不要・代行、2人入居可のため、とても人気の物件となっております。キッチンには、システムキッチンがあります。部屋の設備としては、バス・トイレ別、浴室乾燥機、独立洗面台、温水洗浄便座があります。エアコンが既に設置されているため、初期費用を抑えることが出来ます。そしてインターネット対応しています。セキュリティーとしては、オートロック、宅配ボックスがあります。部屋の設備としては、フローリング、室内洗濯機置場、バルコニー、エレベーター、駐車場あり、駐輪場ありがあります。 |
|||
ただいま2人が検討中!
愛知県名古屋市東区東桜2丁目の賃貸マンション
POINT!室内設備は洗面化粧台・浴室乾燥機などが揃っており、とても充実しています。
|
愛知県名古屋市東区東桜2丁目
名古屋市桜通線/高岳 徒歩4分
|
||||
| 賃料 | 12.9万円 | 敷金/礼金 | 1ヶ月 / 13.9万円 | |
|---|---|---|---|---|
| 共益費 | 1.0万円 | 保証金/敷引 | -/- | |
| 階層 / 方位 | 5階/地上14階建 / 南 | 間取 / 面積 | 1K / 43.07m² | |
| 種別 / 構造 | マンション | 築年数 | 2008年02月 | |
| 特徴 | 駅徒歩5分 南向き バス・トイレ別 エアコン オートロック 即入居可 ペット相談 | |||
プライムメゾン東桜
|
愛知県名古屋市東区東桜2丁目
名古屋市桜通線/高岳 徒歩3分
|
||||
| 賃料 | 13.8万円 | 敷金/礼金 | 1ヶ月 / 14.8万円 | |
|---|---|---|---|---|
| 共益費 | 1.0万円 | 保証金/敷引 | -/- | |
| 階層 / 方位 | 13階/地上14階建 / - | 間取 / 面積 | 1LDK / 43.07m² | |
| 種別 / 構造 | マンション | 築年数 | 2008年03月 | |
| 特徴 | 駅徒歩5分 バス・トイレ別 エアコン オートロック 駐車場あり | |||
プライムメゾン東桜
POINT!自分だけの空間を楽しむならお勧め。WIC、2口コンロ、浴室乾燥機、シャワートイレ、バス・トイレ別
|
愛知県名古屋市東区東桜2丁目
名古屋市桜通線/高岳 徒歩3分
|
||||
| 賃料 | 12.9万円 | 敷金/礼金 | 1ヶ月 / 13.9万円 | |
|---|---|---|---|---|
| 共益費 | 1.0万円 | 保証金/敷引 | -/- | |
| 階層 / 方位 | 5階/地上14階建 / 南 | 間取 / 面積 | 1K / 43.07m² | |
| 種別 / 構造 | マンション | 築年数 | 2008年03月 | |
| 特徴 | 駅徒歩5分 南向き バス・トイレ別 エアコン オートロック 即入居可 ペット相談 | |||
プライムメゾン東桜
|
愛知県名古屋市東区東桜2丁目
名古屋市桜通線/高岳 徒歩3分
|
||||
| 賃料 | 12.9万円 | 敷金/礼金 | 1ヶ月 / 13.9万円 | |
|---|---|---|---|---|
| 共益費 | 1.0万円 | 保証金/敷引 | -/- | |
| 階層 / 方位 | 5階/地上14階建 / - | 間取 / 面積 | 1LDK / 43.07m² | |
| 種別 / 構造 | マンション | 築年数 | 2008年03月 | |
| 特徴 | 駅徒歩5分 バス・トイレ別 エアコン オートロック 駐車場あり | |||
プライムメゾン東桜
POINT!2口コンロ・独立洗面台
|
愛知県名古屋市東区東桜2丁目
名古屋市桜通線/高岳 徒歩3分
|
||||
| 賃料 | 12.9万円 | 敷金/礼金 | 1ヶ月 / 13.9万円 | |
|---|---|---|---|---|
| 共益費 | 1.0万円 | 保証金/敷引 | -/- | |
| 階層 / 方位 | 5階/地上14階建 / 南 | 間取 / 面積 | 1LDK / 43.07m² | |
| 種別 / 構造 | マンション | 築年数 | 2008年02月 | |
| 特徴 | 駅徒歩5分 南向き バス・トイレ別 エアコン オートロック | |||
プライムメゾン東桜
POINT!セキュリティ面は、TVインターホン・オートロックなどを設置しているので安全面でも優れております。周辺に駅が二つあり、交通の利便性が高いです。ご相談次第でペットと暮らせる、ペット相談可の物件です。
|
愛知県名古屋市東区東桜2丁目
名古屋市桜通線/高岳 徒歩3分
|
||||
| 賃料 | 14.2万円 | 敷金/礼金 | 1ヶ月 / 15.2万円 | |
|---|---|---|---|---|
| 共益費 | 1.0万円 | 保証金/敷引 | -/- | |
| 階層 / 方位 | 3階/地上14階建 / 南 | 間取 / 面積 | 1LDK / 46.8m² | |
| 種別 / 構造 | マンション | 築年数 | 2008年03月 | |
| 特徴 | 駅徒歩5分 南向き バス・トイレ別 エアコン オートロック 保証人不要・代行 即入居可 ペット相談 | |||
プライムメゾン東桜
POINT!セキュリティ面は、オートロック・TVインターホンなどを備え付けているので安心して暮らせます。室内設備は洗面化粧台・浴室乾燥機など豊富に揃っており、過ごしやすいお部屋になっております。
|
愛知県名古屋市東区東桜2丁目
名古屋市桜通線/高岳 徒歩3分
|
||||
| 賃料 | 12.9万円 | 敷金/礼金 | 1ヶ月 / 13.9万円 | |
|---|---|---|---|---|
| 共益費 | 1.0万円 | 保証金/敷引 | -/- | |
| 階層 / 方位 | 5階/地上14階建 / 南 | 間取 / 面積 | 1K / 43.07m² | |
| 種別 / 構造 | マンション | 築年数 | 2008年03月 | |
| 特徴 | 駅徒歩5分 南向き バス・トイレ別 エアコン オートロック 保証人不要・代行 即入居可 ペット相談 | |||
プライムメゾン東桜[1302号室]
POINT!2口コンロ・独立洗面台
|
愛知県名古屋市東区東桜2丁目
名古屋市桜通線/高岳 徒歩3分
|
||||
| 賃料 | 13.8万円 | 敷金/礼金 | 1ヶ月 / 14.8万円 | |
|---|---|---|---|---|
| 共益費 | 1.0万円 | 保証金/敷引 | -/- | |
| 階層 / 方位 | 13階/地上14階建 / 南 | 間取 / 面積 | 1R / 43.07m² | |
| 種別 / 構造 | マンション | 築年数 | 2008年02月 | |
| 特徴 | 駅徒歩5分 南向き バス・トイレ別 エアコン オートロック | |||
プライムメゾン東桜
|
愛知県名古屋市東区東桜2丁目10-14
名古屋市桜通線/高岳 徒歩2分
|
||||
| 賃料 | 12.9万円 | 敷金/礼金 | 1ヶ月 / 無料 | |
|---|---|---|---|---|
| 共益費 | 1.0万円 | 保証金/敷引 | -/- | |
| 階層 / 方位 | 9階/地上14階建 / 南 | 間取 / 面積 | 1R / 43.07m² | |
| 種別 / 構造 | マンション | 築年数 | 2008年03月 | |
| 特徴 | 礼金なし 駅徒歩5分 南向き バス・トイレ別 エアコン オートロック 駐車場あり 保証人不要・代行 即入居可 ペット相談 | |||
プライムメゾン東桜
POINT!タウンハウジング東海のお取り扱い物件です。最新の空室状況やの詳細などお気軽にお問い合わせ下さい。
|
愛知県名古屋市東区東桜2丁目10-14
名古屋市桜通線/高岳 徒歩2分
|
||||
| 賃料 | 13.8万円 | 敷金/礼金 | 1ヶ月 / 1ヶ月 | |
|---|---|---|---|---|
| 共益費 | 1.0万円 | 保証金/敷引 | -/- | |
| 階層 / 方位 | 13階/地上14階建 / 南 | 間取 / 面積 | 1LDK / 43.07m² | |
| 種別 / 構造 | マンション | 築年数 | 2008年03月 | |
| 特徴 | 駅徒歩5分 角部屋 南向き バス・トイレ別 エアコン オートロック 駐車場あり 保証人不要・代行 即入居可 ペット相談 | |||
エリア・賃料・間取り・駅徒歩が近いおすすめ物件一覧
愛知県名古屋市東区 | 桜通線 | 122,000円前後 | 駅徒歩10分以内 | 1DK〜1SLDK
のおすすめ物件だぶ!
|
愛知県名古屋市東区東桜2丁目
名古屋市桜通線/高岳 徒歩3分
|
||||
| 賃料 | 11.65万円 | 敷金/礼金 | 無料 / 1ヶ月 | |
|---|---|---|---|---|
| 共益費 | 8,000円 | 保証金/敷引 | -/- | |
| 階層 / 方位 | 5階/地上14階建 / 南 | 間取 / 面積 | 1LDK / 40.17m² | |
| 種別 / 構造 | マンション | 築年数 | 2022年02月 | |
| 特徴 | 敷金なし 駅徒歩5分 角部屋 南向き バス・トイレ別 エアコン オートロック 即入居可 | |||
ただいま6人が検討中!
|
愛知県名古屋市東区泉1丁目
名古屋市桜通線/高岳 徒歩4分
|
||||
| 賃料 | 12.2万円 | 敷金/礼金 | 無料 / 1ヶ月 | |
|---|---|---|---|---|
| 共益費 | 8,000円 | 保証金/敷引 | -/- | |
| 階層 / 方位 | 6階/地上10階建 / 北 | 間取 / 面積 | 1LDK / 46.44m² | |
| 種別 / 構造 | マンション | 築年数 | 2024年03月 | |
| 特徴 | 敷金なし 駅徒歩5分 バス・トイレ別 エアコン オートロック 保証人不要・代行 | |||
ただいま1人が検討中!
|
愛知県名古屋市東区泉2丁目
名古屋市桜通線/高岳 徒歩3分
|
||||
| 賃料 | 12.0万円 | 敷金/礼金 | 無料 / 無料 | |
|---|---|---|---|---|
| 共益費 | 6,000円 | 保証金/敷引 | -/- | |
| 階層 / 方位 | 3階/地上5階建 / 南 | 間取 / 面積 | 1LDK / 51.36m² | |
| 種別 / 構造 | マンション | 築年数 | 2015年03月 | |
| 特徴 | 礼金なし 敷金なし 駅徒歩5分 角部屋 南向き バス・トイレ別 エアコン オートロック ペット相談 | |||
ただいま2人が検討中!
|
愛知県名古屋市東区泉1丁目
名古屋市桜通線/高岳 徒歩4分
|
||||
| 賃料 | 11.5万円 | 敷金/礼金 | 0.5ヶ月 / 1ヶ月 | |
|---|---|---|---|---|
| 共益費 | 6,000円 | 保証金/敷引 | -/- | |
| 階層 / 方位 | 8階/地上10階建 / 南 | 間取 / 面積 | 1LDK / 61.8m² | |
| 種別 / 構造 | マンション | 築年数 | 2004年02月 | |
| 特徴 | 駅徒歩5分 南向き バス・トイレ別 エアコン オートロック 駐車場あり | |||
ただいま3人が検討中!
|
愛知県名古屋市東区泉1丁目
名古屋市桜通線/高岳 徒歩7分
|
||||
| 賃料 | 12.3万円 | 敷金/礼金 | 無料 / 2ヶ月 | |
|---|---|---|---|---|
| 共益費 | 8,000円 | 保証金/敷引 | -/- | |
| 階層 / 方位 | 6階/地上13階建 / 南 | 間取 / 面積 | 1LDK / 47.14m² | |
| 種別 / 構造 | マンション | 築年数 | 2021年07月 | |
| 特徴 | 敷金なし 南向き バス・トイレ別 エアコン オートロック | |||
ただいま4人が検討中!
|
愛知県名古屋市東区泉3丁目
名古屋市桜通線/高岳 徒歩6分
|
||||
| 賃料 | 11.4万円 | 敷金/礼金 | 無料 / 12.4万円 | |
|---|---|---|---|---|
| 共益費 | 1.0万円 | 保証金/敷引 | -/- | |
| 階層 / 方位 | 6階/地上10階建 / 北東 | 間取 / 面積 | 1LDK / 45.1m² | |
| 種別 / 構造 | マンション | 築年数 | 2018年02月 | |
| 特徴 | 敷金なし 角部屋 バス・トイレ別 エアコン オートロック 保証人不要・代行 ペット相談 | |||
ただいま1人が検討中!
|
愛知県名古屋市東区泉1丁目
名古屋市桜通線/高岳 徒歩5分
|
||||
| 賃料 | 11.6万円 | 敷金/礼金 | 1ヶ月 / 1ヶ月 | |
|---|---|---|---|---|
| 共益費 | 8,000円 | 保証金/敷引 | -/- | |
| 階層 / 方位 | 2階/地上10階建 / 西 | 間取 / 面積 | 1LDK / 44.96m² | |
| 種別 / 構造 | マンション | 築年数 | 2006年07月 | |
| 特徴 | 駅徒歩5分 角部屋 バス・トイレ別 エアコン オートロック 保証人不要・代行 即入居可 ペット相談 | |||
ただいま2人が検討中!
|
愛知県名古屋市東区泉1丁目
名古屋市桜通線/高岳 徒歩4分
|
||||
| 賃料 | 11.6万円 | 敷金/礼金 | 1ヶ月 / 1ヶ月 | |
|---|---|---|---|---|
| 共益費 | 8,000円 | 保証金/敷引 | -/- | |
| 階層 / 方位 | 2階/地上10階建 / 東 | 間取 / 面積 | 1LDK / 44.96m² | |
| 種別 / 構造 | マンション | 築年数 | 2006年07月 | |
| 特徴 | 駅徒歩5分 角部屋 バス・トイレ別 エアコン オートロック 即入居可 ペット相談 | |||
ただいま1人が検討中!
|
愛知県名古屋市東区泉1丁目
名古屋市桜通線/高岳 徒歩4分
|
||||
| 賃料 | 11.5万円 | 敷金/礼金 | 0.5ヶ月 / 1ヶ月 | |
|---|---|---|---|---|
| 共益費 | 6,000円 | 保証金/敷引 | -/- | |
| 階層 / 方位 | 8階/地上10階建 / 南 | 間取 / 面積 | 1LDK / 61.8m² | |
| 種別 / 構造 | マンション | 築年数 | 2004年03月 | |
| 特徴 | 駅徒歩5分 南向き バス・トイレ別 エアコン オートロック 駐車場あり 保証人不要・代行 | |||
ただいま1人が検討中!
|
愛知県名古屋市東区泉2丁目
名古屋市桜通線/高岳 徒歩5分
|
||||
| 賃料 | 12.3万円 | 敷金/礼金 | 1ヶ月 / 1ヶ月 | |
|---|---|---|---|---|
| 共益費 | 8,000円 | 保証金/敷引 | -/- | |
| 階層 / 方位 | 5階/地上10階建 / 北 | 間取 / 面積 | 1SLDK ※Sは納戸となります。 / 50.49m² | |
| 種別 / 構造 | マンション | 築年数 | 2024年09月 | |
| 特徴 | 駅徒歩5分 角部屋 バス・トイレ別 エアコン オートロック 駐車場あり | |||
ただいま7人が検討中!
|
愛知県名古屋市東区泉3丁目
名古屋市桜通線/高岳 徒歩5分
|
||||
| 賃料 | 12.6万円 | 敷金/礼金 | 無料 / 無料 | |
|---|---|---|---|---|
| 共益費 | 1.0万円 | 保証金/敷引 | -/- | |
| 階層 / 方位 | 3階/地上12階建 / 西 | 間取 / 面積 | 1LDK / 50.62m² | |
| 種別 / 構造 | マンション | 築年数 | 2008年02月 | |
| 特徴 | 礼金なし 敷金なし 駅徒歩5分 バス・トイレ別 エアコン オートロック 即入居可 ペット相談 | |||
ただいま1人が検討中!
|
愛知県名古屋市東区泉3丁目
名古屋市桜通線/高岳 徒歩3分
|
||||
| 賃料 | 12.3万円 | 敷金/礼金 | 1ヶ月 / 1ヶ月 | |
|---|---|---|---|---|
| 共益費 | 9,000円 | 保証金/敷引 | -/- | |
| 階層 / 方位 | 7階/地上10階建 / 南 | 間取 / 面積 | 1LDK / 43.57m² | |
| 種別 / 構造 | マンション | 築年数 | 2017年11月 | |
| 特徴 | 駅徒歩5分 南向き バス・トイレ別 エアコン オートロック 駐車場あり 保証人不要・代行 即入居可 ペット相談 | |||
ただいま1人が検討中!



