お探しの物件はこちらですか?
[NEW]
郡マンション[505号室]
POINT!住まいとお金は最初が肝心!礼金敷金(保証金)0円。お探しの方には嬉しい高齢者入居相談可、事務所利用可。
|
北海道稚内市港1丁目
宗谷本線/稚内 バス20分 港1丁目バス停から徒歩11分
|
||||
| 賃料 | 5.0万円 | 敷金/礼金 | 無料 / 無料 | |
|---|---|---|---|---|
| 共益費 | 4,000円 | 保証金/敷引 | -/- | |
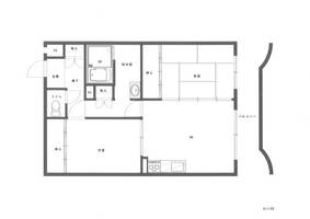
| 階層 / 方位 | 5階/地上7階建 / 南 | 間取 / 面積 | 2DK / 36.86m² | |
| 種別 / 構造 | マンション | 築年数 | 1989年10月 | |
| 特徴 | 礼金なし 敷金なし 南向き バス・トイレ別 駐車場あり 即入居可 | |||
| 本物件について |
こちらの物件は宗谷本線の稚内駅よりバスで20分と徒歩で11分の場所にあるマンションです。トイレには、温水洗浄便座があります。ガス暖房があるため、温かいお部屋で快適に過ごすことが出来ます。部屋の設備としては、室内洗濯機置場、バルコニー、エレベーターがあります。 |
|||
ただいま5人が検討中!


