現在の検索条件
物件一覧結果
全1件中1~1件目を表示中
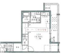
百野マンション(A)
POINT!地元に精通したスタッフが案内!ご相談はOSHIRO不動産へ! こんにちはOSHIRO不動産(オシロ不動産)です!弊社では地元に精通したスタッフがお客様一人ひとりのご希望に寄り添い、最適なご提案をいたします!お気軽にご相談ください。:
| 宮崎県日南市中平野1 
            JR日南線/油津駅 歩13分
           | ||||
| 賃料 | 5.0万円 | 敷金/礼金 | 無料/5.0万円 | |
|---|---|---|---|---|
| 共益費 | - | 保証金/敷引 | -/- | |
| 階層 / 方位 | 4階/地上4階建 / 南東 | 間取 / 面積 | 2LDK / 56.87m² | |
| 種別 / 構造 | マンション / RC | 築年月 | 1985年08月 | |
| 特徴 | 敷金なし 南向き バス・トイレ別 エアコン 駐車場あり 即入居可 ペット相談 | |||
ただいま1人が検討中!
対象者全員に20,000円キャッシュバック!
お探しになっている条件に近い物件一覧
ご指定の条件の物件が少なかったため、
代わりに現在お探しになっている条件に近いオススメ物件をご用意しました!是非チェックしてください。
      *引き継がれていない条件がある場合がございます。
      気になる物件がある際は物件情報を十分に確認して下さい。
    
 
  [NEW] コスモ油津電器本社ビル
POINT!2025年9月完成5階建て賃貸マンション市内中心部で利便性大 オール電化の新築マンションです。同タイプ1LDKは203号家賃65,000円、303号家賃66,000円です。お問い合わせは合同会社三栄不動産、までお気軽にどうぞ。
| 宮崎県日南市中央通1 
            JR日南線/日南駅 歩5分
           | ||||
| 賃料 | 6.7万円 | 敷金/礼金 | 無料/無料 | |
|---|---|---|---|---|
| 共益費 | 4,000円 | 保証金/敷引 | -/- | |
| 階層 / 方位 | 4階/地上5階建 / - | 間取 / 面積 | 1LDK / 56.14m² | |
| 種別 / 構造 | マンション / RC | 築年月 | 新築(2025年09月) | |
| 特徴 | 礼金なし 敷金なし 新築 駅徒歩5分 角部屋 バス・トイレ別 エアコン オートロック 駐車場あり オール電化 即入居可 | |||
ただいま2人が検討中!
対象者全員に20,000円キャッシュバック!
[NEW] マリア・クレール
POINT!BTV光インターネット無料+鹿児島放送2局視聴可♪
| 宮崎県日南市星倉3丁目8番11 
            日南線/飫肥 徒歩16分
           | ||||
| 賃料 | 4.7万円 | 敷金/礼金 | 無料/無料 | |
|---|---|---|---|---|
| 共益費 | 2,000円 | 保証金/敷引 | -/- | |
| 階層 / 方位 | 2階/地上4階建 / 南 | 間取 / 面積 | 1LDK / 41.0m² | |
| 種別 / 構造 | マンション / 鉄筋コンクリート | 築年月 | 2015年03月 | |
| 特徴 | 礼金なし 敷金なし 南向き バス・トイレ別 エアコン 駐車場あり | |||
ただいま1人が検討中!
対象者全員に20,000円キャッシュバック!
[NEW] グランドヴィラ
POINT!2019年10月建築の築浅、次世代型省エネマンションです♪
| 宮崎県日南市岩崎1丁目 
            日南線/油津 徒歩2分
           | ||||
| 賃料 | 5.2万円 | 敷金/礼金 | 無料/無料 | |
|---|---|---|---|---|
| 共益費 | 2,000円 | 保証金/敷引 | -/- | |
| 階層 / 方位 | 3階/地上3階建 / 南西 | 間取 / 面積 | 1LDK / 41.0m² | |
| 種別 / 構造 | マンション / 鉄筋コンクリート | 築年月 | 2019年10月 | |
| 特徴 | 礼金なし 敷金なし 駅徒歩5分 南向き バス・トイレ別 エアコン オートロック 駐車場あり | |||
ただいま5人が検討中!
対象者全員に20,000円キャッシュバック!
[NEW] コスモ油津電器本社ビル
POINT!日南駅徒歩4分の新築物件!オートロック・エレベーター付き! こんにちはOSHIRO不動産(オシロ不動産)です!弊社では地元に精通したスタッフがお客様一人ひとりのご希望に寄り添い、最適なご提案をいたします!お気軽にご相談ください。:
| 宮崎県日南市中央通1 
            JR日南線/日南駅 歩4分
           | ||||
| 賃料 | 4.3万円 | 敷金/礼金 | 無料/無料 | |
|---|---|---|---|---|
| 共益費 | 4,000円 | 保証金/敷引 | -/- | |
| 階層 / 方位 | 2階/地上5階建 / 北 | 間取 / 面積 | 1R / 26.04m² | |
| 種別 / 構造 | マンション / RC | 築年月 | 新築(2025年09月) | |
| 特徴 | 礼金なし 敷金なし 新築 駅徒歩5分 バス・トイレ別 エアコン オートロック 駐車場あり オール電化 即入居可 | |||
ただいま6人が検討中!
対象者全員に20,000円キャッシュバック!
[NEW] コスモ油津電器本社ビル
POINT!日南駅徒歩4分の新築物件!オートロック・エレベーター付き! こんにちはOSHIRO不動産(オシロ不動産)です!弊社では地元に精通したスタッフがお客様一人ひとりのご希望に寄り添い、最適なご提案をいたします!お気軽にご相談ください。:
| 宮崎県日南市中央通1 
            JR日南線/日南駅 歩4分
           | ||||
| 賃料 | 4.9万円 | 敷金/礼金 | 無料/無料 | |
|---|---|---|---|---|
| 共益費 | 4,000円 | 保証金/敷引 | -/- | |
| 階層 / 方位 | 2階/地上5階建 / 東 | 間取 / 面積 | 1R / 32.4m² | |
| 種別 / 構造 | マンション / RC | 築年月 | 新築(2025年09月) | |
| 特徴 | 礼金なし 敷金なし 新築 駅徒歩5分 バス・トイレ別 エアコン オートロック 駐車場あり オール電化 即入居可 | |||
ただいま2人が検討中!
対象者全員に20,000円キャッシュバック!
[NEW] コスモ油津電器本社ビル
POINT!2025年9月完成5階建て賃貸マンション市内中心部で利便性大 新築です。同タイプワンルームは305号家賃50,000円、405号家賃51,000円、505号家賃53,000円です。お問い合わせは合同会社三栄不動産、までお気軽に
| 宮崎県日南市中央通1 
            JR日南線/日南駅 歩5分
           | ||||
| 賃料 | 4.9万円 | 敷金/礼金 | 無料/無料 | |
|---|---|---|---|---|
| 共益費 | 4,000円 | 保証金/敷引 | -/- | |
| 階層 / 方位 | 2階/地上5階建 / - | 間取 / 面積 | 1R / 40.9m² | |
| 種別 / 構造 | マンション / RC | 築年月 | 新築(2025年09月) | |
| 特徴 | 礼金なし 敷金なし 新築 駅徒歩5分 角部屋 バス・トイレ別 エアコン オートロック 駐車場あり オール電化 即入居可 | |||
ただいま4人が検討中!
対象者全員に20,000円キャッシュバック!
[NEW] コスモ油津電器本社ビル
POINT!日南駅徒歩4分の新築物件!オートロック・エレベーター付き! こんにちはOSHIRO不動産(オシロ不動産)です!弊社では地元に精通したスタッフがお客様一人ひとりのご希望に寄り添い、最適なご提案をいたします!お気軽にご相談ください。:
| 宮崎県日南市中央通1 
            JR日南線/日南駅 歩4分
           | ||||
| 賃料 | 6.0万円 | 敷金/礼金 | 無料/無料 | |
|---|---|---|---|---|
| 共益費 | 4,000円 | 保証金/敷引 | -/- | |
| 階層 / 方位 | 2階/地上5階建 / 北西 | 間取 / 面積 | 1LDK / 39.1m² | |
| 種別 / 構造 | マンション / RC | 築年月 | 新築(2025年09月) | |
| 特徴 | 礼金なし 敷金なし 新築 駅徒歩5分 バス・トイレ別 エアコン オートロック 駐車場あり オール電化 即入居可 | |||
ただいま2人が検討中!
対象者全員に20,000円キャッシュバック!
[NEW] コスモ油津電器本社ビル
POINT!日南駅徒歩4分の新築物件!オートロック・エレベーター付き! こんにちはOSHIRO不動産(オシロ不動産)です!弊社では地元に精通したスタッフがお客様一人ひとりのご希望に寄り添い、最適なご提案をいたします!お気軽にご相談ください。:
| 宮崎県日南市中央通1 
            JR日南線/日南駅 歩4分
           | ||||
| 賃料 | 6.3万円 | 敷金/礼金 | 無料/無料 | |
|---|---|---|---|---|
| 共益費 | 4,000円 | 保証金/敷引 | -/- | |
| 階層 / 方位 | 2階/地上5階建 / 北西 | 間取 / 面積 | 1LDK / 41.85m² | |
| 種別 / 構造 | マンション / RC | 築年月 | 新築(2025年09月) | |
| 特徴 | 礼金なし 敷金なし 新築 駅徒歩5分 バス・トイレ別 エアコン オートロック 駐車場あり オール電化 即入居可 | |||
ただいま2人が検討中!
対象者全員に20,000円キャッシュバック!
[NEW] コスモ油津電器本社ビル
POINT!日南駅徒歩4分の新築物件!オートロック・エレベーター付き! こんにちはOSHIRO不動産(オシロ不動産)です!弊社では地元に精通したスタッフがお客様一人ひとりのご希望に寄り添い、最適なご提案をいたします!お気軽にご相談ください。:
| 宮崎県日南市中央通1 
            JR日南線/日南駅 歩4分
           | ||||
| 賃料 | 6.5万円 | 敷金/礼金 | 無料/無料 | |
|---|---|---|---|---|
| 共益費 | 4,000円 | 保証金/敷引 | -/- | |
| 階層 / 方位 | 2階/地上5階建 / 南 | 間取 / 面積 | 1LDK / 46.56m² | |
| 種別 / 構造 | マンション / RC | 築年月 | 新築(2025年09月) | |
| 特徴 | 礼金なし 敷金なし 新築 駅徒歩5分 南向き バス・トイレ別 エアコン オートロック 駐車場あり オール電化 即入居可 | |||
ただいま2人が検討中!
対象者全員に20,000円キャッシュバック!
[NEW] HIマンション
POINT!エアコン、バストイレ別、お湯張り追い炊き機能付き☆
| 宮崎県日南市星倉3丁目 
            日南線/飫肥 徒歩14分
           | ||||
| 賃料 | 5.8万円 | 敷金/礼金 | 無料/無料 | |
|---|---|---|---|---|
| 共益費 | 2,000円 | 保証金/敷引 | -/- | |
| 階層 / 方位 | 3階/地上3階建 / 南東 | 間取 / 面積 | 2LDK / 51.03m² | |
| 種別 / 構造 | マンション / 鉄筋コンクリート | 築年月 | 2012年08月 | |
| 特徴 | 礼金なし 敷金なし 角部屋 南向き バス・トイレ別 エアコン 駐車場あり | |||
ただいま3人が検討中!
対象者全員に20,000円キャッシュバック!
[NEW] ユーミーアローレ
POINT!BTV光インターネット無料+鹿児島放送2局視聴可(^^♪
| 宮崎県日南市吾田東6丁目 
            日南線/日南 徒歩17分
           | ||||
| 賃料 | 5.6万円 | 敷金/礼金 | 無料/無料 | |
|---|---|---|---|---|
| 共益費 | 2,000円 | 保証金/敷引 | -/- | |
| 階層 / 方位 | 4階/地上4階建 / 南西 | 間取 / 面積 | 2LDK / 53.01m² | |
| 種別 / 構造 | マンション / 鉄筋コンクリート | 築年月 | 2009年02月 | |
| 特徴 | 礼金なし 敷金なし 南向き バス・トイレ別 エアコン 駐車場あり | |||
ただいま1人が検討中!
対象者全員に20,000円キャッシュバック!
[NEW] ユーミーアローレ
POINT!BTV光インターネット無料+鹿児島放送2局視聴可(^^♪
| 宮崎県日南市吾田東6丁目 
            日南線/日南 徒歩17分
           | ||||
| 賃料 | 5.7万円 | 敷金/礼金 | 無料/無料 | |
|---|---|---|---|---|
| 共益費 | 2,000円 | 保証金/敷引 | -/- | |
| 階層 / 方位 | 3階/地上4階建 / 南西 | 間取 / 面積 | 2LDK / 53.01m² | |
| 種別 / 構造 | マンション / 鉄筋コンクリート | 築年月 | 2009年02月 | |
| 特徴 | 礼金なし 敷金なし 南向き バス・トイレ別 エアコン 駐車場あり | |||
ただいま1人が検討中!
対象者全員に20,000円キャッシュバック!
[NEW] あいらんどシー
POINT!コンビニが近く生活しやすい環境です(*^^*)
| 宮崎県日南市大堂津5丁目 
            日南線/大堂津 徒歩12分
           | ||||
| 賃料 | 4.9万円 | 敷金/礼金 | 無料/無料 | |
|---|---|---|---|---|
| 共益費 | 2,000円 | 保証金/敷引 | -/- | |
| 階層 / 方位 | 4階/地上5階建 / 南 | 間取 / 面積 | 1LDK / 47.2m² | |
| 種別 / 構造 | マンション / 鉄筋コンクリート | 築年月 | 2008年07月 | |
| 特徴 | 礼金なし 敷金なし 角部屋 南向き バス・トイレ別 エアコン 駐車場あり | |||
ただいま1人が検討中!
対象者全員に20,000円キャッシュバック!
[NEW] ユーミーアローレ
POINT!インターネット無料&TVチャンネル鹿児島2局視聴可能★
| 宮崎県日南市吾田東6丁目 
            日南線/日南 徒歩17分
           | ||||
| 賃料 | 5.8万円 | 敷金/礼金 | 無料/無料 | |
|---|---|---|---|---|
| 共益費 | 2,000円 | 保証金/敷引 | -/- | |
| 階層 / 方位 | 3階/地上4階建 / 南西 | 間取 / 面積 | 3DK / 56.85m² | |
| 種別 / 構造 | マンション / 鉄筋コンクリート | 築年月 | 2009年02月 | |
| 特徴 | 礼金なし 敷金なし 角部屋 南向き バス・トイレ別 エアコン 駐車場あり | |||
ただいま1人が検討中!
対象者全員に20,000円キャッシュバック!
[NEW] ソレイユコート
POINT!敷金・礼金・更新料ゼロで初期費用が押さえられます(^^)
| 宮崎県日南市岩崎1丁目4-12 
            日南線/油津 徒歩4分
           | ||||
| 賃料 | 5.0万円 | 敷金/礼金 | 無料/無料 | |
|---|---|---|---|---|
| 共益費 | 2,000円 | 保証金/敷引 | -/- | |
| 階層 / 方位 | 2階/地上4階建 / 南 | 間取 / 面積 | 1LDK / 40.8m² | |
| 種別 / 構造 | マンション / 鉄筋コンクリート | 築年月 | 2013年03月 | |
| 特徴 | 礼金なし 敷金なし 駅徒歩5分 角部屋 南向き バス・トイレ別 エアコン 駐車場あり | |||
ただいま7人が検討中!
対象者全員に20,000円キャッシュバック!
[NEW] ユーミーいちまるⅥ
POINT!インターネット無料☆ハウスメーカー造りの物件で設備も充実♪
| 宮崎県日南市南郷町中村乙7051-293 
            日南線/南郷 徒歩21分
           | ||||
| 賃料 | 4.7万円 | 敷金/礼金 | 無料/無料 | |
|---|---|---|---|---|
| 共益費 | 2,000円 | 保証金/敷引 | -/- | |
| 階層 / 方位 | 4階/地上4階建 / 南東 | 間取 / 面積 | 2DK / 48.73m² | |
| 種別 / 構造 | マンション / 鉄筋コンクリート | 築年月 | 2006年03月 | |
| 特徴 | 礼金なし 敷金なし 角部屋 南向き バス・トイレ別 エアコン 駐車場あり | |||
ただいま3人が検討中!
対象者全員に20,000円キャッシュバック!
[NEW] 宮崎県日南市岩崎1丁目の賃貸マンション
POINT!敷金・礼金・更新料ゼロで初期費用が押さえられます(^^)
| 宮崎県日南市岩崎1丁目 
            日南線/油津 徒歩4分
           | ||||
| 賃料 | 5.0万円 | 敷金/礼金 | 無料/無料 | |
|---|---|---|---|---|
| 共益費 | 2,000円 | 保証金/敷引 | -/- | |
| 階層 / 方位 | 2階/地上4階建 / 南 | 間取 / 面積 | 1LDK / 40.8m² | |
| 種別 / 構造 | マンション / 鉄筋コンクリート | 築年月 | 2013年03月 | |
| 特徴 | 礼金なし 敷金なし 駅徒歩5分 角部屋 南向き バス・トイレ別 エアコン 駐車場あり | |||
対象者全員に20,000円キャッシュバック!
[NEW] BEL FIORE
POINT!バルコニーのある物件です 化粧品や洗面道具といった小物もスッキリまとめて収納できる独立洗面台が付いております。オートロック機能が付いているので、建物内は基本的に住民のみという環境であり安心感につながります。
| 宮崎県日南市大字星倉 
            JR日南線/飫肥駅 歩25分
           | ||||
| 賃料 | 5.0万円 | 敷金/礼金 | 無料/無料 | |
|---|---|---|---|---|
| 共益費 | 2,000円 | 保証金/敷引 | -/- | |
| 階層 / 方位 | 3階/地上4階建 / 南 | 間取 / 面積 | 1LDK / 41.0m² | |
| 種別 / 構造 | マンション / RC | 築年月 | 2020年03月 | |
| 特徴 | 礼金なし 敷金なし 南向き バス・トイレ別 エアコン オートロック 駐車場あり | |||
ただいま2人が検討中!
対象者全員に20,000円キャッシュバック!
[NEW] ユーミーグランディK2
POINT!次世代型省エネ仕様で水道光熱費を節約♪
| 宮崎県日南市吾田東4丁目 
            日南線/日南 徒歩10分
           | ||||
| 賃料 | 4.9万円 | 敷金/礼金 | 無料/無料 | |
|---|---|---|---|---|
| 共益費 | 2,000円 | 保証金/敷引 | -/- | |
| 階層 / 方位 | 2階/地上3階建 / 南東 | 間取 / 面積 | 1LDK / 41.82m² | |
| 種別 / 構造 | マンション / 鉄筋コンクリート | 築年月 | 2011年03月 | |
| 特徴 | 礼金なし 敷金なし 南向き バス・トイレ別 エアコン 駐車場あり | |||
ただいま2人が検討中!
対象者全員に20,000円キャッシュバック!
[NEW] ユーミー園田
POINT!1フロアー2世帯の全室角部屋\(^O^)/
| 宮崎県日南市園田3丁目 
            日南線/油津 徒歩14分
           | ||||
| 賃料 | 5.0万円 | 敷金/礼金 | 無料/無料 | |
|---|---|---|---|---|
| 共益費 | 2,000円 | 保証金/敷引 | -/- | |
| 階層 / 方位 | 3階/地上3階建 / 南 | 間取 / 面積 | 1LDK / 40.63m² | |
| 種別 / 構造 | マンション / 鉄筋コンクリート | 築年月 | 2009年07月 | |
| 特徴 | 礼金なし 敷金なし 角部屋 南向き バス・トイレ別 エアコン 駐車場あり | |||
ただいま4人が検討中!
対象者全員に20,000円キャッシュバック!
[NEW] スターマンション・K
POINT!エンターネット無料☆安心のハウスメーカーの物件です(^^)
| 宮崎県日南市星倉4丁目 
            日南線/日南 バス3分 宮崎交通 横手町バス停から徒歩3分
           | ||||
| 賃料 | 5.3万円 | 敷金/礼金 | 無料/無料 | |
|---|---|---|---|---|
| 共益費 | 2,000円 | 保証金/敷引 | -/- | |
| 階層 / 方位 | 3階/地上3階建 / 南東 | 間取 / 面積 | 2DK / 48.73m² | |
| 種別 / 構造 | マンション / 鉄筋コンクリート | 築年月 | 2007年11月 | |
| 特徴 | 礼金なし 敷金なし 角部屋 南向き バス・トイレ別 エアコン 駐車場あり | |||
ただいま3人が検討中!
対象者全員に20,000円キャッシュバック!
[NEW] あいらんどシー
POINT!コンビニが近く生活しやすい環境です(*^^*)
| 宮崎県日南市大堂津5丁目8-1 
            日南線/大堂津 徒歩12分
           | ||||
| 賃料 | 4.0万円 | 敷金/礼金 | 無料/無料 | |
|---|---|---|---|---|
| 共益費 | 2,000円 | 保証金/敷引 | -/- | |
| 階層 / 方位 | 4階/地上5階建 / 南 | 間取 / 面積 | 1DK / 29.6m² | |
| 種別 / 構造 | マンション / 鉄筋コンクリート | 築年月 | 2008年07月 | |
| 特徴 | 礼金なし 敷金なし 南向き バス・トイレ別 エアコン 駐車場あり | |||
ただいま5人が検討中!
対象者全員に20,000円キャッシュバック!
[NEW] ユーミーブライト
POINT!BTV光ルームインターネット無料+鹿児島放送2局視聴可能。
| 宮崎県日南市大字戸高 
            日南線/日南 徒歩9分
           | ||||
| 賃料 | 5.6万円 | 敷金/礼金 | 無料/無料 | |
|---|---|---|---|---|
| 共益費 | 2,500円 | 保証金/敷引 | -/- | |
| 階層 / 方位 | 1階/地上3階建 / 南 | 間取 / 面積 | 2LDK / 49.6m² | |
| 種別 / 構造 | マンション / 鉄筋コンクリート | 築年月 | 2010年03月 | |
| 特徴 | 礼金なし 敷金なし 角部屋 南向き バス・トイレ別 エアコン 駐車場あり | |||
ただいま4人が検討中!
対象者全員に20,000円キャッシュバック!
[NEW] マリア・コート
POINT!インターネット無料☆全戸角部屋J☆
| 宮崎県日南市吾田西2丁目 
            日南線/日南 徒歩15分
           | ||||
| 賃料 | 5.6万円 | 敷金/礼金 | 無料/無料 | |
|---|---|---|---|---|
| 共益費 | 2,000円 | 保証金/敷引 | -/- | |
| 階層 / 方位 | 1階/地上4階建 / 南 | 間取 / 面積 | 2LDK / 49.31m² | |
| 種別 / 構造 | マンション / 鉄筋コンクリート | 築年月 | 2013年03月 | |
| 特徴 | 礼金なし 敷金なし 角部屋 南向き バス・トイレ別 エアコン 駐車場あり | |||
ただいま4人が検討中!
対象者全員に20,000円キャッシュバック!
[NEW] コスモマンション岩崎
POINT!オール電化・BTV光インターネット無料+鹿児島放送2局視聴可
| 宮崎県日南市岩崎1丁目8-12 
            日南線/油津 徒歩2分
           | ||||
| 賃料 | 5.45万円 | 敷金/礼金 | 無料/無料 | |
|---|---|---|---|---|
| 共益費 | 3,000円 | 保証金/敷引 | -/- | |
| 階層 / 方位 | 9階/地上12階建 / 南 | 間取 / 面積 | 2DK / 44.8m² | |
| 種別 / 構造 | マンション / 鉄筋コンクリート | 築年月 | 2004年03月 | |
| 特徴 | 礼金なし 敷金なし 駅徒歩5分 角部屋 南向き バス・トイレ別 エアコン オートロック 駐車場あり オール電化 | |||
ただいま1人が検討中!
対象者全員に20,000円キャッシュバック!
[NEW] コスモマンション星倉
POINT!BTVインターネット無料+鹿児島放送2CH利用可能(^^♪
| 宮崎県日南市吾田東8丁目1-3 
            日南線/日南 徒歩17分
           | ||||
| 賃料 | 5.2万円 | 敷金/礼金 | 無料/無料 | |
|---|---|---|---|---|
| 共益費 | 3,000円 | 保証金/敷引 | -/- | |
| 階層 / 方位 | 4階/地上4階建 / 南 | 間取 / 面積 | 2LDK / 58.6m² | |
| 種別 / 構造 | マンション / 鉄筋コンクリート | 築年月 | 2000年02月 | |
| 特徴 | 礼金なし 敷金なし 南向き バス・トイレ別 エアコン オートロック 駐車場あり | |||
ただいま1人が検討中!
対象者全員に20,000円キャッシュバック!
[NEW] ユーミー上平野
POINT!次世代型省エネ仕様で経済的です(^^)/
| 宮崎県日南市上平野町1丁目 
            日南線/日南 徒歩5分
           | ||||
| 賃料 | 4.9万円 | 敷金/礼金 | 無料/無料 | |
|---|---|---|---|---|
| 共益費 | 2,000円 | 保証金/敷引 | -/- | |
| 階層 / 方位 | 1階/地上4階建 / 南東 | 間取 / 面積 | 1LDK / 41.82m² | |
| 種別 / 構造 | マンション / 鉄筋コンクリート | 築年月 | 2011年09月 | |
| 特徴 | 礼金なし 敷金なし 駅徒歩5分 角部屋 南向き バス・トイレ別 エアコン 駐車場あり | |||
ただいま1人が検討中!
対象者全員に20,000円キャッシュバック!
[NEW] コスモ油津電器本社ビル
POINT!エレベーター、エアコン付き!オートロックなので女性も安心! お部屋探しはF企画不動産まで!
| 宮崎県日南市中央通1 
            JR日南線/日南駅 歩5分
           | ||||
| 賃料 | 4.3万円 | 敷金/礼金 | 無料/無料 | |
|---|---|---|---|---|
| 共益費 | 4,000円 | 保証金/敷引 | -/- | |
| 階層 / 方位 | 2階/地上5階建 / - | 間取 / 面積 | 1R / 30.0m² | |
| 種別 / 構造 | マンション / RC | 築年月 | 新築(2025年08月) | |
| 特徴 | 礼金なし 敷金なし 新築 駅徒歩5分 バス・トイレ別 エアコン オートロック 駐車場あり 即入居可 | |||
ただいま9人が検討中!
対象者全員に20,000円キャッシュバック!
[NEW] コスモ油津電器本社ビル
POINT!エレベーター、エアコン付き!オートロックなので女性も安心! お部屋探しはF企画不動産まで!
| 宮崎県日南市中央通1 
            JR日南線/日南駅 歩5分
           | ||||
| 賃料 | 6.0万円 | 敷金/礼金 | 無料/無料 | |
|---|---|---|---|---|
| 共益費 | 4,000円 | 保証金/敷引 | -/- | |
| 階層 / 方位 | 2階/地上5階建 / - | 間取 / 面積 | 1LDK / 47.6m² | |
| 種別 / 構造 | マンション / RC | 築年月 | 新築(2025年08月) | |
| 特徴 | 礼金なし 敷金なし 新築 駅徒歩5分 バス・トイレ別 エアコン オートロック 駐車場あり 即入居可 | |||
ただいま2人が検討中!
対象者全員に20,000円キャッシュバック!
良い物件が見つからない…。そんな時は!
賃貸EX 公式LINEアカウント


 
 
 
 
 
 
 
 
 
 
 
 
 
 
 
 
 
 
 
 
 
 
 
 
 
 
 
 
 
 
 
 
 
 
 
 
 
 
 
 
 
 
 
 
 
 
 
 
 
 
 
 
 
 
 
 
 
 
 
 

